
STRECKER-OLENYI Industrie- & Gewerbeimmobilien
Herr Arno Strecker
072 ···
Nr. anzeigenPreise & Kosten
Provision für Mieter
provisionsfrei
Abschreibung/Anlage
Denkmalschutz-Afa
Warum sehe ich diese Anzeige? – Du siehst diese Anzeige basierend auf Ihrer Navigation auf unserer Website und den Suchkriterien, die du verwendet hast.
Lage
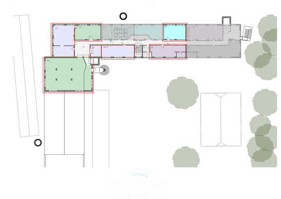
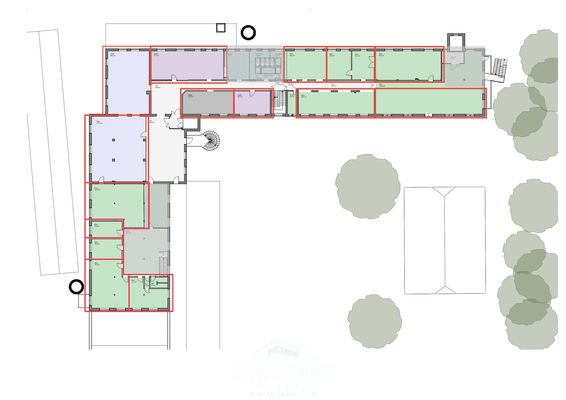
Das Areal liegt unmittelbar am Waldrand und bietet ein außergewöhnlich ruhiges, inspirierendes Umfeld mit Innenhofstruktur und großzügigen Freiflächen. Die besondere Atmosphäre vermittelt ein eigenständiges Campusgefühl und schafft ideale Voraussetzungen für konzentriertes Arbeiten ebenso wie für kreativen...
Büro-/Praxisfläche
Kategorie
Bürofläche
Bezug
sofort
Energie & Heizung
Warum sehe ich diese Anzeige? – Du siehst diese Anzeige basierend auf Ihrer Navigation auf unserer Website und den Suchkriterien, die du verwendet hast.
Energieausweis: für diesen Gebäudetyp nicht notwendig
Details
Objektbeschreibung
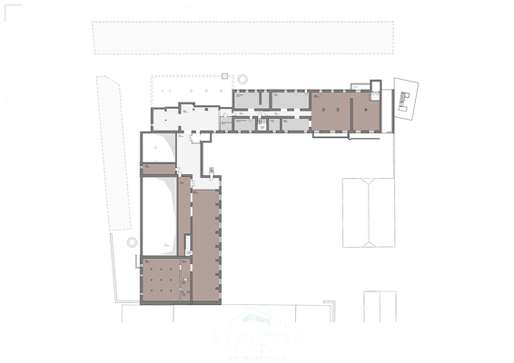
Am Ahaweg 6 in Karlsruhe entsteht innerhalb eines denkmalgeschützten Gebäudeensembles ein vielseitig nutzbarer Gewerbestandort mit besonderer Atmosphäre. Das historisch gewachsene Areal der ehemaligen Majolika-Kunstwerkstätten verbindet industrielle Vergangenheit mit flexiblen Nutzungsmöglichkeiten für modernes Arbeiten...
Weitere Informationen
Sonstiges
Alle Angaben erfolgen nach bestem Wissen. Irrtum und Zwischenvermietung vorbehalten.
Dieses Exposé ist eine Vorinformation, als Rechtsgrundlage gilt allein der abgeschlossene
Mietvertrag.
Stichworte
Gesamtfläche: 200,00 m², Bundesland: Baden-Württemberg, 3 Etagen, Distanz zum Flughafen: 36.55...
Anbieter der Immobilie
STRECKER-OLENYI Industrie- & Gewerbeimmobilien
An der Tagweide 2, 76139 Karlsruhe
Online-ID: 2nkjr5v
Referenznummer: 2026013
Finde Angebote wie dieses
Hier geht es zu unserem Impressum, den Allgemeinen Geschäftsbedingungen, den Hinweisen zum Datenschutz und nutzungsbasierter Online-Werbung.