

BW-Bank Immobilienvermittlung
Herr Michael Knoblauch
075 ···
Nr. anzeigenPreise & Kosten
Provision für Käufer
3,57 % inkl. MwSt.
Lage
Salem liegt im Süden von Baden-Württemberg, in der Nähe des Bodensees. Die Gemeinde ist von einer malerischen Landschaft aus Wiesen, Wäldern und Hügeln umgeben und bietet somit eine idyllische und ruhige Wohnlage. Die Nähe zum Bodensee ermöglicht zudem vielfältige Freizeitaktivitäten, wie Segeln, Schwimmen und natürlich auch...
Die Wohnung
Wohnungslage
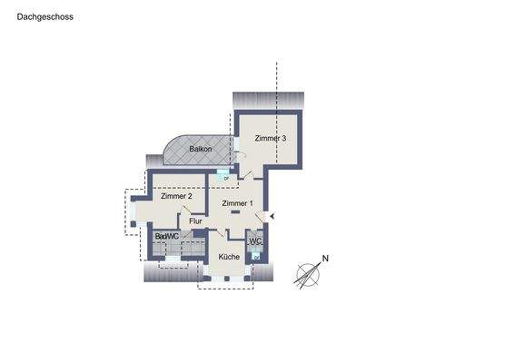
3. Geschoss (Dachgeschoss)
Bezug
sofort
Wohnanlage
Energie & Heizung
Warum sehe ich diese Anzeige? – Du siehst diese Anzeige basierend auf Ihrer Navigation auf unserer Website und den Suchkriterien, die du verwendet hast.
Energieausweistyp
Verbrauchsausweis
Gebäudetyp
Wohngebäude
Baujahr laut Energieausweis
1984
Wesentliche Energieträger
Öl
Gültigkeit
27.06.2024 bis 26.06.2034
Effizienzklasse
D
Endenergieverbrauch
114,00 kWh/(m²·a)
Weitere Energiedaten
Energieträger
Öl
Heizungsart
Zentralheizung
Details
Objektbeschreibung
Dieses massiv gebaute 6-Familienhaus wurde in den letzten Jahren neu organisiert und aufgeteilt. Die zum Verkauf kommende Dachgeschosswohnung ist sehr hell und gemütlich. Sie ist aktuell frei und deshalb sowohl zum Einstieg für Kapitalanleger als auch für Eigennutzer interessant.
Ausstattung
Die Wände wurden in 2025 neu verputzt und gestrichen. Es wurden neue Böden und Fliesen verlegt und im Bad eine ebenerdige Dusche sowie eine Badewanne eingebaut. Ebenso wurde ein neues Dachfenster eingebaut.
Preisinformation
Soll-Mieteinnahmen pro Jahr: 10.800,00 EUR
Weitere Informationen
Sonstiges
Aufgrund der Neuaufteilung kann auf Wunsch auch ein PKW-Stellplatz zusätzlich erworben werden.
Die Heizung wurde gemäß Energieausweis 2023 erneuert. Die Warmwasseraufbereitung erfolgt über Elektroboiler.
Stichworte
Anzahl der separaten WCs: 1, Anzahl Balkone: 1, Bundesland: Baden-Württemberg...
Anbieter der Immobilie
BW-Bank Immobilienvermittlung
Heilbronner Straße 28, 70191 Stuttgart

Online-ID: 2nkhd5l
Referenznummer: SI-109078
Finde Angebote wie dieses
Hier geht es zu unserem Impressum, den Allgemeinen Geschäftsbedingungen, den Hinweisen zum Datenschutz und nutzungsbasierter Online-Werbung.