

VR-Bank Donau-Mindel eG
Frau Laura Hittinger
090 ···
Nr. anzeigenPreise & Kosten
Provision für Käufer
3 % inkl. MwSt.
Die Käuferprovision beträgt 3,00 % inkl. MwSt. vom Kaufpreis. Die Käuferprovision ist verdient und fällig mit notarieller Beurkundung. Weitere Informationen siehe Provisionshinweis.
Lage
Dillingen an der Donau ist eine Große Kreisstadt und der Verwaltungssitz des gleichnamigen Landkreises im bayerischen Regierungsbezirk Schwaben. Augsburg als nächstgelegenes Oberzentrum liegt rund 50 km entfernt.
Mit dem Auto ist Dillingen über die Bundesstraße 16 zu erreichen. Die nächsten Autobahnanschlüsse liegen in...
Das Haus
Kategorie
Einfamilienhaus
Baujahr
1956
Bezug
sofort
Energie & Heizung
Warum sehe ich diese Anzeige? – Du siehst diese Anzeige basierend auf Ihrer Navigation auf unserer Website und den Suchkriterien, die du verwendet hast.
Energieausweistyp
Bedarfsausweis
Gebäudetyp
Wohngebäude
Baujahr laut Energieausweis
1957
Wesentliche Energieträger
Öl
Gültigkeit
04.12.2023 bis 03.12.2033
Effizienzklasse
H
Endenergiebedarf
279,80 kWh/(m²·a)
Weitere Energiedaten
Energieträger
Öl
Heizungsart
Zentralheizung
Details
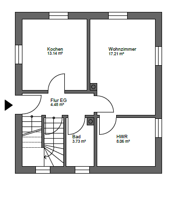
Objektbeschreibung
Zum Verkauf steht ein renovierungsbedürftiges Einfamilienhaus auf einem ca. 432 m² großen Grundstück, das großes Potenzial für kreative Ideen bietet. Mit einer Wohnfläche von etwa 78 m² und einer durchdachten Raumaufteilung eignet sich diese Immobilie perfekt für handwerklich begabte Käufer, die ihren Wohntraum verwirklichen...
Ausstattung
Folgende Renovierungen und Modernisierungen wurden in den letzten Jahren durchgeführt:
ca. 2021: Holzofen Küche neu
ca. 2017: Kamineinfassungen und Edelstahlrohre in beiden Kaminen erneuert
ca. 2011: Bad erneuert
ca. 2008: Küche erneuert und Estrich aufgetragen
ca. 2005: Hausanstrich
ca. 2004...
Weitere Informationen
Provisionshinweis
3 % inkl. MwSt.
Die Käuferprovision beträgt 3,00 % inkl. MwSt. vom Kaufpreis. Die Käuferprovision ist verdient und fällig mit notarieller Beurkundung. Die Immobilienabteilung der VR-Bank Donau-Mindel eG hat einen provisionspflichtigen Maklervertrag in gleicher Höhe mit dem Verkäufer...
Anbieter der Immobilie
VR-Bank Donau-Mindel eG
Kapuzinerstraße 25, 89407 Dillingen a. d. Donau

Online-ID: 2nke85z
Referenznummer: HS-2064
Finde Angebote wie dieses
Hier geht es zu unserem Impressum, den Allgemeinen Geschäftsbedingungen, den Hinweisen zum Datenschutz und nutzungsbasierter Online-Werbung.