
ASAN Immobilien
Herr Tolga Asan
+49 ···
Nr. anzeigenPreise & Kosten
Provision für Mieter
3,57 Kaltmieten
Zahlungsfähigkeit nachweisen - KSV1870 InfoPass zur Besichtigung mitnehmen info
Warum sehe ich diese Anzeige? – Du siehst diese Anzeige basierend auf Ihrer Navigation auf unserer Website und den Suchkriterien, die du verwendet hast.
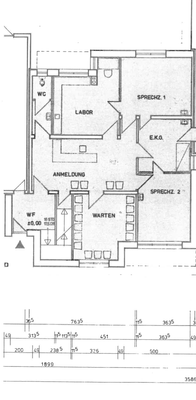
Büro-/Praxisfläche
Baujahr
1980
Bezug
nach Absprache
Derzeitige Nutzung
vermietet
Geschoss
1. Geschoss
Details
Weitere Informationen
Energiepass
Energieausweis wird bei Besichtigung vorgelegt.
Stichworte
Gesamtfläche: 135,00 m², Bundesland: Bayern, 1 Etagen
Anbieter der Immobilie
Online-ID: 2nkdj5e
Referenznummer: 1013
Finde Angebote wie dieses
Hier geht es zu unserem Impressum, den Allgemeinen Geschäftsbedingungen, den Hinweisen zum Datenschutz und nutzungsbasierter Online-Werbung.