
RE/MAX Casa Experte - Immobilienmakler in Nürnberg
Herr Piotr Tuzlucov
004 ···
Nr. anzeigenPreise & Kosten
Provision für Käufer
Bitte beachte, das Angebot kann bei Vertragsabschluss die Zahlung einer Provision beinhalten. Weitere Informationen erhältst Du vom Anbieter.
Abschreibung/Anlage
Denkmalschutz-Afa
Lage
Die Feuerleinstraße 33 befindet sich im beliebten Nürnberger Stadtteil Gostenhof, einem der spannendsten und sich dynamisch entwickelnden Viertel der Stadt. Die sogenannte Nürnberger Weststadt hat sich in den letzten Jahren zu einem lebendigen urbanen Quartier mit einer kreativen Mischung aus Wohnen, Kultur und Gastronomie...
Die Wohnung
Wohnungslage
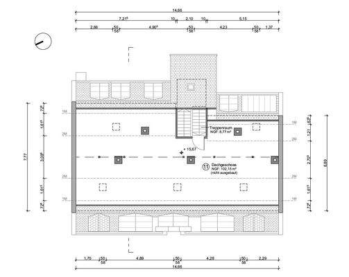
5. Geschoss (Dachgeschoss)
Bezug
01.05.2026
Wohnanlage
Energie & Heizung
Warum sehe ich diese Anzeige? – Du siehst diese Anzeige basierend auf Ihrer Navigation auf unserer Website und den Suchkriterien, die du verwendet hast.
Energieausweis: für diesen Gebäudetyp nicht notwendig
Weitere Energiedaten
Energieträger
Elektro
Heizungsart
Luft-/Wasser-Wärmepumpe
Details
Objektbeschreibung
Zum Verkauf steht ein Rohdachgeschoss mit großem Ausbaupotenzial in einem charmanten Altbau in der Feuerleinstraße in Nürnberg. Die Einheit bietet eine Bruttofläche von ca. 102 m², aus der nach dem Ausbau eine Wohnfläche von etwa 72 m² realisiert werden kann.
Geplant werden kann beispielsweise eine großzügige...
Ausstattung
- Anschlüsse für Strom, Wasser, Heizung und Internet bereits im Dachgeschoss vorhanden
- ca. 72 m² mögliche Wohnfläche nach Ausbau
- Denkmalschutzsanierung des gesamten Gebäudes (2026)
- Heizungsleitungen erneuert
- Steigleitungen erneuert
- Stromanlage erneuert
- moderne zentrale Luft-Wasser-Wärmepumpe
Weitere Informationen
Sonstiges
Sollten Sie ein ausführliches Exposé anfordern, so überprüfen Sie bitte Ihren Spam-Ordner.
Für die Zusendung des Exposés / weitere Informationen zum Objekt sowie einen Terminwunsch bitte unbedingt nachfolgende Daten des Kaufinteressenten im Kontaktformular angeben
- kompletter Name
- komplette...
Anbieter der Immobilie
Online-ID: 2nkdd5z
Referenznummer: 1117-66-PT
Finde Angebote wie dieses
Hier geht es zu unserem Impressum, den Allgemeinen Geschäftsbedingungen, den Hinweisen zum Datenschutz und nutzungsbasierter Online-Werbung.