
FALC Immobilien Coesfeld
Herr Alexander Jundt
080 ···
Nr. anzeigenPreise & Kosten
Provision für Käufer
provisionsfrei
Lage
Die Immobilie befindet sich in Appelhülsen, einer Gemeinde im Münsterland mit sehr guter Verkehrsanbindung und gewachsener Infrastruktur. Die Lage eignet sich gleichermaßen für Pendler, Eigennutzer und Kapitalanleger.
Ein wesentlicher Standortvorteil ist die Nähe zum Bahnhof Appelhülsen, der bequem und fußläufig zu...
Die Wohnung
Wohnungslage
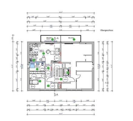
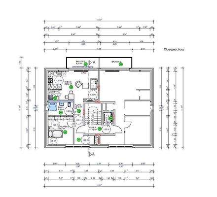
1. Geschoss
Wohnanlage
Energie & Heizung
Warum sehe ich diese Anzeige? – Du siehst diese Anzeige basierend auf Ihrer Navigation auf unserer Website und den Suchkriterien, die du verwendet hast.
Weitere Energiedaten
Heizungsart
Luft-/Wasser-Wärmepumpe
Details
Objektbeschreibung
Diese moderne Neubauwohnung befindet sich im Obergeschoss eines hochwertig errichteten Mehrfamilienhauses im hinteren Grundstücksbereich, in der Steverstraße 17 in Nottuln/Appelhülsen. Das Gebäude wurde als Neubau im Effizienzhausstandard 55 EE realisiert und verbindet zeitgemäße Architektur mit einem nachhaltigen...
Ausstattung
- Hinteres Haus | Neubau | Effizienzhaus 55 EE -
Neubau Effizienzhaus 55 EE
Wohnungsnummer: 3
Geschoss: Obergeschoss
Zimmeranzahl: 2 Zimmer
Anzahl Badezimmer: 1
Wohnfläche: 61,51 m²
Balkonfläche: 6,24 m²
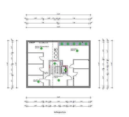
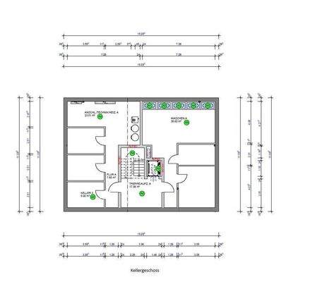
Kellerraumfläche: 8,89 m²
Stellplatz: vorhanden
- Gebäude & Technik...
Preisinformation
1 Stellplatz
Weitere Informationen
Sonstiges
Wir bieten nicht nur eine kostenlose Hotline, sondern auch einen Service am Wochenende. Bei Interesse geben Sie bitte immer Ihre vollständigen Kontaktdaten an.
Die Objektbeschreibung beruht ganz oder zum Teil auf Angaben des Eigentümers. Für die Richtigkeit oder Vollständigkeit übernehmen wir keine Gewähr...
Dokumente
Anbieter der Immobilie
FALC Immobilien Coesfeld
Bahnhofstraße 1, 48301 Nottuln
Online-ID: 2nkcw5w
Referenznummer: FALC-LeEi-77300
Finde Angebote wie dieses
Hier geht es zu unserem Impressum, den Allgemeinen Geschäftsbedingungen, den Hinweisen zum Datenschutz und nutzungsbasierter Online-Werbung.