
ohne-makler.net - Immobilien selbst vermarkten
Privat von Herr Sedlmair
Kontaktiere den Anbieter schriftlich, es ist keine Telefonnummer hinterlegt.
Preise & Kosten
Kaution
7.500,00
Warum sehe ich diese Anzeige? – Du siehst diese Anzeige basierend auf Ihrer Navigation auf unserer Website und den Suchkriterien, die du verwendet hast.
Lage
Das Objekt befindet sich in Egmating - zwischen Höhenkirchen-Siegertsbrunn und Glonn. Die Stadt München ist nur 30km entfernt und mit dem PKW gut zu erreichen und die Berge sind für Ausflüge auch nicht weit entfernt.
Die Immobilie liegt in ruhiger Wohnlage von Egmating im Landkreis Ebersberg, südöstlich von München. Die...
Das Haus
Kategorie
Doppelhaushälfte
Baujahr
2026
Bezug
nach Absprache
Energie & Heizung
Warum sehe ich diese Anzeige? – Du siehst diese Anzeige basierend auf Ihrer Navigation auf unserer Website und den Suchkriterien, die du verwendet hast.
Energieausweistyp
Bedarfsausweis
Gebäudetyp
Wohngebäude
Effizienzklasse
A+
Endenergiebedarf
21,00 kWh/(m²·a)
Weitere Energiedaten
Heizungsart
Fußbodenheizung, Luft-/Wasser-Wärmepumpe
Details
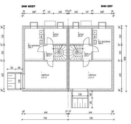
Objektbeschreibung
Neubau-Doppelhaushälften in Egmating - Erstbezug
Zur Vermietung stehen hochwertige Neubau-Doppelhaushälften in ruhiger und attraktiver Lage von Egmating. Das Haus überzeugt durch großzügige Raumaufteilung und viel Platz für die ganze Familie.
Die Wohnfläche beträgt ca. 174 m² und verteilt sich auf 7 Zimmer...
Ausstattung
Terrasse, Garten, Keller, Vollbad, Duschbad, Gäste-WC, Fliesen
Bemerkungen:
Fußbodenheizung in allen Wohnräumen
Wärmepumpe
Elektrische Rollos
Helle Fliesen "Solnhofner Art" im gesamten Haus
Eigener Garten mit Süd-Terrasse
Zuzüglich PKW-Stellplätze nach Bedarf bzw. Absprache
Preisinformation
1 Carportplatz
1 Stellplatz
Nettokaltmiete: 2.500,00 EUR
Weitere Informationen
Sonstiges
Heizungsart: Fußbodenheizung
Energieträger: Luft-/Wasserwärme
ohne-makler (OM) ist weder Anbieter noch Vermittler der Immobilie. OM betreibt eine Plattform für Immobilieneigentümer, die unter anderem die gleichzeitige Veröffentlichung einzelner Inserate auf mehreren Immobilienportalen ermöglicht...
Anbieter der Immobilie
ohne-makler.net - Immobilien selbst vermarkten
Humboldtstr. 25 A, 21509 Glinde
Privat von Herr Sedlmair
Dein Ansprechpartner
Kontaktiere den Anbieter schriftlich, es ist keine Telefonnummer hinterlegt.
Online-ID: 2nkb55t
Referenznummer: 434910
Finde Angebote wie dieses
Hier geht es zu unserem Impressum, den Allgemeinen Geschäftsbedingungen, den Hinweisen zum Datenschutz und nutzungsbasierter Online-Werbung.