
Home Hunts
Herr Francois De Vial
+33 ···
Nr. anzeigenPreise & Kosten
Provision für Käufer
Bitte beachte, das Angebot kann bei Vertragsabschluss die Zahlung einer Provision beinhalten. Weitere Informationen erhältst Du vom Anbieter.
Das Haus
Kategorie
Einfamilienhaus
Bezug
ab sofort
Details
Objektbeschreibung
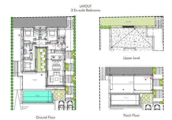
Located next to La Capellanía, just five minutes from the charming Benalmadena Pueblo and directly beneath the iconic Buddhist Stupa in Retamar, this exceptional single-level villa has been designed by one of Spain's most award-winning architects.
Every line and detail has been carefully considered to blend...
Anbieter der Immobilie
Home Hunts
55 Rue saint Ferreol, 13001 MARSEILLE
Online-ID: 2nkad5b
Referenznummer: HH-15914643/HH-15914643/HH-15914643
Finde Angebote wie dieses
Hier geht es zu unserem Impressum, den Allgemeinen Geschäftsbedingungen, den Hinweisen zum Datenschutz und nutzungsbasierter Online-Werbung.