
Schneide GmbH
Herr Marvin Gröbitz
+49 ···
Nr. anzeigenPreise & Kosten
in Warmmiete enthalten
Kaution
4.650,00
Warum sehe ich diese Anzeige? – Du siehst diese Anzeige basierend auf Ihrer Navigation auf unserer Website und den Suchkriterien, die du verwendet hast.
Lage
Das Grundstück befindet sich im Hamburger Stadtteil Neuengamme, unweit des Elbdeichs.
Der idyllische Stadtkern von Bergedorf ist nur wenige Autominuten entfernt. Die Hamburger City ist über die A 25 oder die B 5 in etwa 25 Autominuten zu erreichen. Bushaltestellen verschiedener Linien befinden sich in fußläufiger Nähe...
Die Wohnung
Kategorie
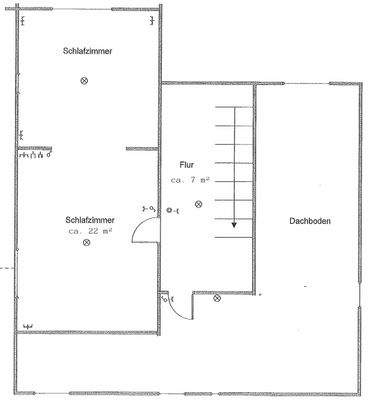
Maisonette
Bezug
16.05.2026
Wohnanlage
Energie & Heizung
Warum sehe ich diese Anzeige? – Du siehst diese Anzeige basierend auf Ihrer Navigation auf unserer Website und den Suchkriterien, die du verwendet hast.
Energieausweistyp
Bedarfsausweis
Gebäudetyp
Wohngebäude
Baujahr laut Energieausweis
1919
Wesentliche Energieträger
Gas
Gültigkeit
20.02.2026 bis 19.02.2036
Endenergiebedarf
152,00 kWh/(m²·a)
Weitere Energiedaten
Energieträger
Gas
Heizungsart
Zentralheizung
Details
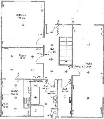
Objektbeschreibung
Die hier zur Vermietung stehende 3-Zimmer-Wohnung befindet sich im Ober-/Dachgeschoss eines Zweifamilienhauses und wurde vor ca. 10 Jahren umfangreich modernisiert (teilweise 3-fach verglaste Fenster, Heizungsanlage, Bad, Elektrik etc.).
Die Wohnung ist ausgestattet mit einer Einbauküche inkl. E-Herd mit...
Preisinformation
Kaution: 4.650,00, 1 Stellplatz, Miete: 45,00 EUR
Weitere Informationen
Sonstiges
- Gaszentralheizung inkl. Warmwasseraufbereitung
- Zu-/Abwasser und Strom Mieter direkt mit Versorgern
- Mindestmietzeit 2 Jahre
- die Wohnung verfügt über einen Kaminanschluss
- Abstand Mieter Kamin: 1.750,00 (sofern gewünscht)
- (Vor-)Garten mit Gartenhäuschen
Terminabsprachen für eine...
Anbieter der Immobilie
Schneide GmbH
Kirchwerder Landweg 1, 21037 Hamburg
Online-ID: 2nk8v5s
Referenznummer: MG_NGHD13_003
Finde Angebote wie dieses
Hier geht es zu unserem Impressum, den Allgemeinen Geschäftsbedingungen, den Hinweisen zum Datenschutz und nutzungsbasierter Online-Werbung.