
DAHLER Starnberg / schäferhochzwei GmbH
Herr Wigand Schäfer
004 ···
Nr. anzeigenPreise & Kosten
Provision für Käufer
3,57 % inkl. der gesetzl. MwSt., bezogen auf den Kaufpreis inkl. MwSt.
Lage
Gauting kombiniert grüne Wohnqualität mit optimaler Infrastruktur.
Die S-Bahn verbindet Sie in kurzer Zeit mit der Münchner Innenstadt. Einkaufsmöglichkeiten, Schulen und Freizeitangebote befinden sich im direkten Umfeld.
Der nahe Starnberger See sorgt zusätzlich für hohen Freizeitwert und unterstreicht die...
Die Wohnung
Wohnungslage
1. Geschoss
Derzeitige Nutzung
vermietet
Wohnanlage
Energie & Heizung
Warum sehe ich diese Anzeige? – Du siehst diese Anzeige basierend auf Ihrer Navigation auf unserer Website und den Suchkriterien, die du verwendet hast.
Energieausweistyp
Verbrauchsausweis
Gebäudetyp
Wohngebäude
Baujahr laut Energieausweis
2000
Wesentliche Energieträger
GAS
Gültigkeit
bis 26.04.2033
Effizienzklasse
E
Endenergieverbrauch
144,20 kWh/(m²·a)
Weitere Energiedaten
Energieträger
Gas
Heizungsart
Zentralheizung
Details
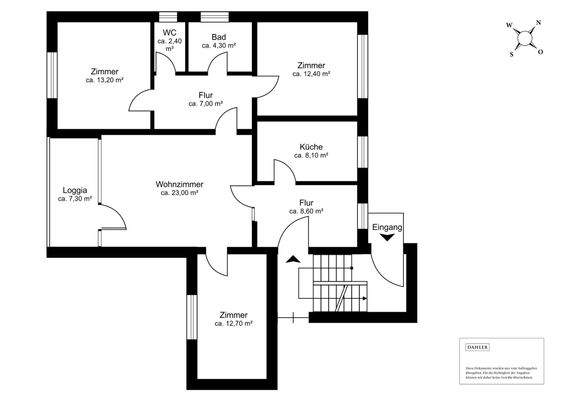
Objektbeschreibung
Diese gut geschnittene 4 Zimmer Wohnung überzeugt mit einem durchdachten Grundriss, einer angenehmen Wohnatmosphäre und vielseitigen Nutzungsmöglichkeiten. Der großzügige Wohnbereich mit Zugang zur Loggia bildet den Mittelpunkt der Wohnung und schafft zusammen mit den weiteren gut proportionierten Zimmern ein stimmiges...
Ausstattung
? 4 Zimmer
? großzügiger Wohnbereich
? Loggia
? separate Küche
? Badezimmer
? separates WC
? Stellplatz
? Kellerabteil
? gut durchdachter Grundriss
? vielseitig nutzbare Zimmer
? attraktiv für Familien, Paare oder Eigennutzer
Preisinformation
1 Stellplatz
Weitere Informationen
Stichworte
Anzahl der Schlafzimmer: 3, Anzahl der Badezimmer: 1, Anzahl der separaten WCs: 1, Anzahl Balkone: 1, 3 Etagen, Distanz zum Kindergarten: 0.14, Distanz zur Grundschule: 0.93, Distanz zur Realschule: 1.87, Distanz zur nächsten Einkaufsmöglichkeit: 7.41, Distanz zum Gymnasium: 1.77, Distanz zum Flughafen: 51.00...
Anbieter der Immobilie
DAHLER Starnberg / schäferhochzwei GmbH
Maximilianstraße 8, 82319 Starnberg
Online-ID: 2nk775x
Referenznummer: DC-STA-0275
Finde Angebote wie dieses
Hier geht es zu unserem Impressum, den Allgemeinen Geschäftsbedingungen, den Hinweisen zum Datenschutz und nutzungsbasierter Online-Werbung.