
Jonathan Bayer Immobilien
Herr Nelian Bayer
004 ···
Nr. anzeigenPreise & Kosten
Provision für Käufer
3,57% inkl. MwSt.
Die Käufer-Provision ist verdient und fällig mit notarieller Beurkundung. Der Immobilienmakler hat einen provisionspflichtigen Maklervertrag in gleicher Höhe mit dem Verkäufer abgeschlossen.
Lage
Die Immobilie befindet sich in einer ruhigen und dennoch zentralen Wohnlage im beliebten Stadtteil Cuxhaven-Sahlenburg. Diese attraktive Umgebung kombiniert ländliche Idylle mit der Nähe zu städtischen Annehmlichkeiten und bietet somit ein hohes Maß an Lebensqualität.
Öffentliche Verkehrsanbindung:
Die Anbindung an...
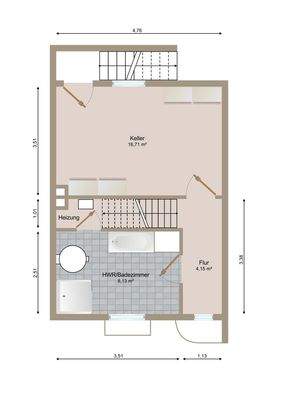
Das Haus
Kategorie
Reihenmittelhaus
Baujahr
1962
Bezug
sofort
Energie & Heizung
Warum sehe ich diese Anzeige? – Du siehst diese Anzeige basierend auf Ihrer Navigation auf unserer Website und den Suchkriterien, die du verwendet hast.
Energieausweistyp
Bedarfsausweis
Gebäudetyp
Wohngebäude
Baujahr laut Energieausweis
2000
Wesentliche Energieträger
GAS
Gültigkeit
bis 21.06.2030
Effizienzklasse
G
Endenergiebedarf
219,20 kWh/(m²·a)
Weitere Energiedaten
Energieträger
Gas
Details
Objektbeschreibung
Wohnen wo andere Urlaub machen! Angeboten wird ein Reihenmittelhaus in einer ruhigen und idyllischen Lage, nur wenige Schritte vom beliebten Wernerwald in Cuxhaven-Sahlenburg entfernt. Das im Jahr 1962 in massiver Bauweise errichtete Haus bietet auf etwa 65 m² Wohnfläche eine solide Grundlage für individuelle Anpassungen und...
Weitere Informationen
Sonstiges
Wir können keine Gewähr oder Garantie auf die Aktualität und Richtigkeit der gemachten Angaben geben, da wir auf Basis der Informationen arbeiten die uns von unseren Auftraggebern zur Verfügung gestellt werden. Alle Informationen wurden von uns mit der notwendigen Sorgfalt veröffentlicht. Im Übrigen gelten unsere...
Anbieter der Immobilie
Jonathan Bayer Immobilien
Am Hang 18b, 27624 Geestland
Online-ID: 2nk3x5n
Referenznummer: 569
Finde Angebote wie dieses
Hier geht es zu unserem Impressum, den Allgemeinen Geschäftsbedingungen, den Hinweisen zum Datenschutz und nutzungsbasierter Online-Werbung.