
Crozilla.com
BROKER-GRUPA d.o.o.
+38 ···
Nr. anzeigenPreise & Kosten
Provision für Käufer
Bitte beachte, das Angebot kann bei Vertragsabschluss die Zahlung einer Provision beinhalten. Weitere Informationen erhältst Du vom Anbieter.
Die Immobilie
Zu diesem Angebot wurden vom Anbieter keine weiteren Daten hinterlegt. Für weitere Informationen bitte den Anbieter kontaktieren.
Nach Informationen fragenDetails
Objektbeschreibung
In einer gepflegten Küstensiedlung im Norden der Insel Hvar, bekannt für ihren Yachthafen und die entspannte mediterrane Atmosphäre, entsteht ein neues Projekt mit 16 Wohnungen.
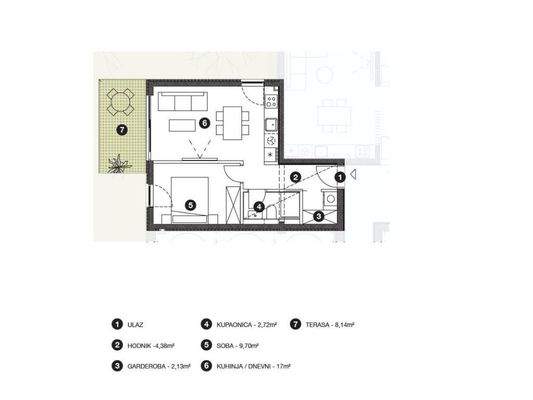
Im Erdgeschoss von Gebäude B befindet sich die Wohnung S1 mit einer Wohnfläche von 52 m. Sie zeichnet sich durch einen funktionalen Grundriss...
Weitere Informationen
Stichworte
Anzahl der Badezimmer: 1, 1 Etagen
Anbieter der Immobilie
Crozilla.com
Nova cesta 60, 10000 ZAGREB
Online-ID: 2nk3m5y
Referenznummer: 19412272_1
Finde Angebote wie dieses
Hier geht es zu unserem Impressum, den Allgemeinen Geschäftsbedingungen, den Hinweisen zum Datenschutz und nutzungsbasierter Online-Werbung.