
ohne-makler.net - Immobilien selbst vermarkten
Privat von Peter Groll
Kontaktiere den Anbieter schriftlich, es ist keine Telefonnummer hinterlegt.
Preise & Kosten
nicht in Warmmiete enthalten
Kaution
1.680,00
Warum sehe ich diese Anzeige? – Du siehst diese Anzeige basierend auf Ihrer Navigation auf unserer Website und den Suchkriterien, die du verwendet hast.
Lage
Wohnen Sie in Zukunft in Sichtweite der "Alten Baumwolle", dem neuen Stadtzentrum von Flöha! Hier erwartet Sie eine perfekt ausgebaute
Infrastruktur.
Nahversorgung:
- Einkaufsmöglichkeiten in Laufweite
- mehrere Ärzte und Apotheken im Ort
Bildung, Freizeit und Sport:
- Exzellentes Schulsystem - von...
Die Wohnung
Wohnungslage
2. Geschoss
Bezug
nach Absprache
Wohnanlage
Energie & Heizung
Warum sehe ich diese Anzeige? – Du siehst diese Anzeige basierend auf Ihrer Navigation auf unserer Website und den Suchkriterien, die du verwendet hast.
Energieausweistyp
Bedarfsausweis
Gebäudetyp
Wohngebäude
Effizienzklasse
C
Endenergiebedarf
125,00 kWh/(m²·a)
Weitere Energiedaten
Energieträger
Elektro
Heizungsart
Etagenheizung
Details
Objektbeschreibung
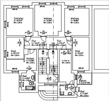
Diese ansprechende, helle 5-Zimmer-Wohnung mit einer Wohnfläche von ca. 143?m² befindet sich in einem gepflegten Mehrfamilienhaus in citynaher Lage von Flöha. Die Wohnung ist vollständig renoviert und überzeugt durch eine lichtdurchflutete, freundliche Atmosphäre. Der großzügige Grundriss bietet beste Wohnverhältnisse für...
Ausstattung
Balkon, Garten, Keller, Vollbad, Duschbad, Gäste-WC, Parkett, Laminat, Fliesen
Bemerkungen:
- perfekter Grundriss mit vielen individuellen Gestaltungsmöglichkeiten
- energiesparende Elektroheizung innerhalb der gesamten Wohnung
- in den Wohnräumen und im Flur ist hochwertiges Laminat (überwiegend neu)...
Preisinformation
1 Stellplatz, Miete: 30,00 EUR
Nettokaltmiete: 840,00 EUR
Weitere Informationen
Sonstiges
Heizungsart: Etagenheizung
Energieträger: Strom
Alle Angaben zum Objekt und dem Mietpreis sowie Größen der Wohnung, beruhen auf den Angaben des Eigentümers. Für die Richtigkeit übernehmen wir keine Gewährleistung. Sind Sie an weiteren Immobilien-Angeboten interessiert, bitte sprechen Sie uns unter Tel...
Anbieter der Immobilie
ohne-makler.net - Immobilien selbst vermarkten
Humboldtstr. 25 A, 21509 Glinde
Privat von Peter Groll
Dein Ansprechpartner
Kontaktiere den Anbieter schriftlich, es ist keine Telefonnummer hinterlegt.
Online-ID: 2nk3b5z
Referenznummer: 433368
Finde Angebote wie dieses
Hier geht es zu unserem Impressum, den Allgemeinen Geschäftsbedingungen, den Hinweisen zum Datenschutz und nutzungsbasierter Online-Werbung.