
EURAG GmbH
Herr Klaus Berg
091 ···
Nr. anzeigenPreise & Kosten
Kaution
3 Nettokaltmieten
Provision für Mieter
provisionsfrei
Warum sehe ich diese Anzeige? – Du siehst diese Anzeige basierend auf Ihrer Navigation auf unserer Website und den Suchkriterien, die du verwendet hast.
Lage
Die Gewerbeeinheit befindet sich im Nürnberger Norden in unmittelbarer Nähe des großen und beliebten Marienbergparks sowie an einer stark frequentierten Hauptverkehrsader.
Öffentliche Verkehrsmittel (Bus, U-Bahn) sind fußläufig erreichbar, alle Einrichtungen des täglichen Bedarfs sowie Schulen und Kindergärten in der...
Die Ladenfläche
Baujahr
1968
Bezug
ab sofort
Erdgeschoss
Energie & Heizung
Warum sehe ich diese Anzeige? – Du siehst diese Anzeige basierend auf Ihrer Navigation auf unserer Website und den Suchkriterien, die du verwendet hast.
Wärme
Energieausweistyp
Bedarfsausweis
Gebäudetyp
Nicht-Wohngebäude
Baujahr laut Energieausweis
1968
Wesentliche Energieträger
Fernwärme, Strom
Gültigkeit
bis 09.01.2030
Endenergiebedarf (Wärme)
164,30 kWh/(m²·a)
Details
Objektbeschreibung
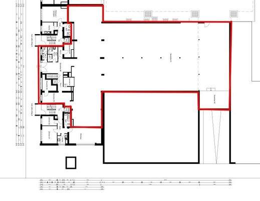
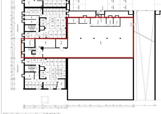
Ladenfläche in ehemaliger Lebensmittelhandelsfläche mit ca. 690 m² Verkaufsfläche im Erdgeschoss und ca. 395 m² Lagerfläche im Untergeschoss
Ausstattung:
- Bodenbelag: Fliesen
- EG mit abgehängten Decken
- separater Personal-/Liefereingang
- eigener Aufzug EG-UG
- Entlüftungsanlage
-...
Ausstattung
Alle Angaben in diesem Exposé wurden sorgfältig und so vollständig wie möglich erstellt. Die Angaben sind ohne Gewähr und basieren ausschließlich auf Informationen, die von unserem Auftraggeber zur Verfügung gestellt wurden. Wir übernehmen keine Gewähr für die Vollständigkeit, Richtigkeit und Aktualität dieser Angaben...
Weitere Informationen
Provision
provisionsfrei
Kaution
3 Nettokaltmieten
Bezugstermin
ab sofort
Anbieter der Immobilie
EURAG GmbH
Fichtestr. 26, 90489 Nürnberg
Online-ID: 2nk2s5q
Referenznummer: 5462
Finde Angebote wie dieses
Hier geht es zu unserem Impressum, den Allgemeinen Geschäftsbedingungen, den Hinweisen zum Datenschutz und nutzungsbasierter Online-Werbung.