

Kreissparkasse Miesbach-Tegernsee
Frau Marianne Wittmoser
+49 ···
Nr. anzeigenPreise & Kosten
Provision für Käufer
3,57 % inkl. MwSt.
Lage
Der Urlaubsort Fischbachau, ist etwas ganz Besonderes. Hier vereinen sich neben der einmaligen topographischen Lage, ein hoher Freizeitwert in allen erdenklichen Bereichen mit einer optimalen Infrastruktur.
Die Landeshauptstadt München ist in einer Fahrstunde zu erreichen. Die Autobahn A8, Auffahrt Irschenberg oder...
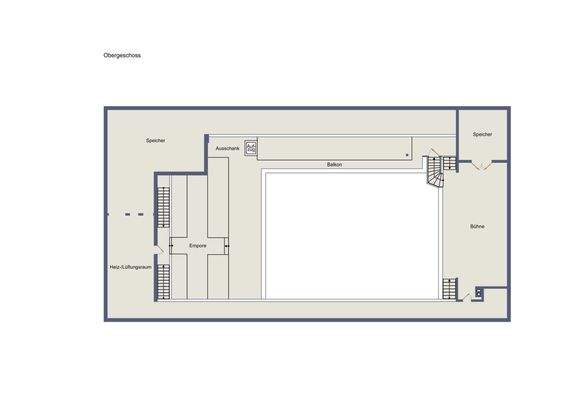
Das Objekt
Baujahr
1989
Energie & Heizung
Warum sehe ich diese Anzeige? – Du siehst diese Anzeige basierend auf Ihrer Navigation auf unserer Website und den Suchkriterien, die du verwendet hast.
Energieausweistyp
Verbrauchsausweis
Gebäudetyp
Wohngebäude
Baujahr laut Energieausweis
1989
Wesentliche Energieträger
Fernwärme
Gültigkeit
10.03.2025 bis 09.03.2035
Effizienzklasse
B
Endenergieverbrauch
53,00 kWh/(m²·a) - Warmwasser enthalten
Weitere Energiedaten
Energieträger
Fernwärme
Details
Objektbeschreibung
Kurzbeschreibung
Mehrzweck-Gewerbehalle in Fischbachau
Objekt
Zum Verkauf kommt die Wolfseehalle in der Gemeinde Fischbachau. Das Gebäude ist größtenteils im Jahre 1989 errichtet, umgebaut und später nochmals erweitert, bzw. teils unterkellert worden.
Die massiv errichtete Halle bietet viele Möglichkeiten der...
Weitere Informationen
Stichworte
Gesamtfläche: 1.490,00 m², Bundesland: Bayern, modernisiert: 1993
Anbieter der Immobilie

Online-ID: 2nk255p
Referenznummer: 1/20/404-404/010404
Finde Angebote wie dieses
Hier geht es zu unserem Impressum, den Allgemeinen Geschäftsbedingungen, den Hinweisen zum Datenschutz und nutzungsbasierter Online-Werbung.