
A 4 Immobilien GmbH
Frau Grit Seliger
+49 ···
Nr. anzeigenPreise & Kosten
Kaution
3 Kaltmieten
Warum sehe ich diese Anzeige? – Du siehst diese Anzeige basierend auf Ihrer Navigation auf unserer Website und den Suchkriterien, die du verwendet hast.
Lage
Unteres Dorf- Röppisch
Die Wohnung
Wohnanlage
Energie & Heizung
Warum sehe ich diese Anzeige? – Du siehst diese Anzeige basierend auf Ihrer Navigation auf unserer Website und den Suchkriterien, die du verwendet hast.
Energieausweistyp
Verbrauchsausweis
Gebäudetyp
Wohngebäude
Baujahr laut Energieausweis
1995
Endenergieverbrauch
81,80 kWh/(m²·a) - Warmwasser enthalten
Weitere Energiedaten
Energieträger
Öl
Heizungsart
Zentralheizung
Details
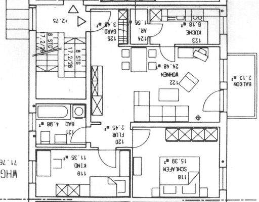
Objektbeschreibung
Die Wohnung befindet sich in einem Mitte der 90er Jahre neugebautem Objekt im 1.OG.
-Westbalkon vom Wohnzimmer zu begehen
-Bad mit Wanne und Fenster
-Küche, PVC Belag und Fenster
-Bodenbeläge PVC
-alle Fenster mit Rollläden
-Im Haus befindet sich ein Wäschetrockenraum.
Zur Wohnung kann ein Stellplatz...
Weitere Informationen
Stichworte
Serviceleistungen: Hausmeister
Anbieter der Immobilie
Online-ID: 2njza5z
Referenznummer: 105/1
Finde Angebote wie dieses
Hier geht es zu unserem Impressum, den Allgemeinen Geschäftsbedingungen, den Hinweisen zum Datenschutz und nutzungsbasierter Online-Werbung.