

Mertin Immobilien
Frau Anja Mertin
+49 ···
Nr. anzeigenPreise & Kosten
Provision für Käufer
3,57 % inkl. MwSt. auf den notariell beurkundeten Kaufpreis
Lage
Embühren ist ein ruhiges Dorf mit ca. 220 Einwohner, welches zum Amt Jevenstedt gehört und sich im Kreis Rendsburg-Eckernförde befindet. Embühren ist überwiegend ländlich geprägt.
Kindergärten, Schule und Sportverein befinden sich in Haale (ca. 3 km) und Todenbüttel (ca. 6 km). Im ca. 10 km entfernten Ort Jevenstedt finden...
Das Haus
Kategorie
Einfamilienhaus
Baujahr
1906
Bezug
Sofort
Energie & Heizung
Warum sehe ich diese Anzeige? – Du siehst diese Anzeige basierend auf Ihrer Navigation auf unserer Website und den Suchkriterien, die du verwendet hast.
Energieausweistyp
Bedarfsausweis
Gebäudetyp
Wohngebäude
Gültigkeit
26.05.2025 bis 16.05.2035
Endenergiebedarf
241,00 kWh/(m²·a)
Weitere Energiedaten
Energieträger
Fernwärme
Details
Objektbeschreibung
Dieses charmante Einfamilienhaus mit Einliegerwohnung in ruhiger Feldrandlage bietet auf einem ca. 1,7 ha großen Grundstück vielfältige Möglichkeiten für eine große Familie, Mehrgenerationen-Wohnen, Naturliebhaber und/oder Pferdehalter. Früher war die Immobilie ein landwirtschaftlicher Betrieb.
Das heutige Wohnhaus stammt...
Ausstattung
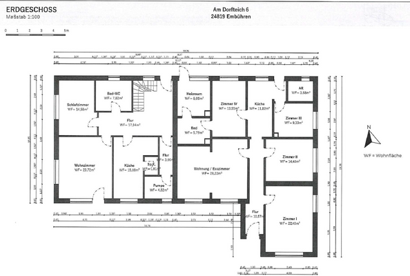
Die Erdgeschoss-Wohnung im Altbau (ca. 130 m² Wohnfläche) ist sanierungsbedürftig.
Preisinformation
12 Stellplätze
Weitere Informationen
Sonstiges
Bitte haben Sie Verständnis, dass nur Anfragen mit Angabe des Namens, der vollständigen Anschrift und einer Telefonnummer zur Kontaktaufnahme beantwortet werden.
Der Makler-Vertrag mit uns (Mertin Immobilien, Anja Mertin, Kurze Straße 10, 24784 Westerrönfeld) kommt durch schriftliche Vereinbarung oder...
Anbieter der Immobilie

Mertin Immobilien
Straße 10, 24784 Westerrönfeld

Online-ID: 2njyz5u
Referenznummer: 11540 - Embühren, Am Dorfteich 6
Finde Angebote wie dieses
Hier geht es zu unserem Impressum, den Allgemeinen Geschäftsbedingungen, den Hinweisen zum Datenschutz und nutzungsbasierter Online-Werbung.