
LBS Immobilien GmbH Südwest - Büro Worms
Herrn Herbert Jung
062 ···
Nr. anzeigenPreise & Kosten
Provision für Mieter
1 KM inkl. MwSt.
Provision zahlt der Mieter
Warum sehe ich diese Anzeige? – Du siehst diese Anzeige basierend auf Ihrer Navigation auf unserer Website und den Suchkriterien, die du verwendet hast.
Lage
Das Objekt liegt im Gewerbegebiet von einem Ortsteil von Lampertheim, das über die Zufahrt von der L 3411 sehr gut angebunden ist. Von hier aus erreicht man gut die B 44 und die B47, die dann weiter bis zur A67 oder der A5 führt. So ist der Norden wie auch der Süden gut zu erreichen.
Als alternative kann man das...
Die Industriefläche
Kategorie
Lagerhalle
Baujahr
1995
Energie & Heizung
Warum sehe ich diese Anzeige? – Du siehst diese Anzeige basierend auf Ihrer Navigation auf unserer Website und den Suchkriterien, die du verwendet hast.
Energieausweis: für diesen Gebäudetyp nicht notwendig
Details
Objektbeschreibung
Aktuell steht das Objekt leer und kann sofort genutzt werden.
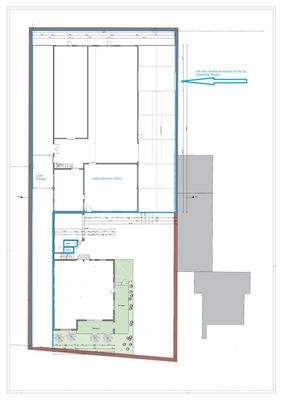
Die Halle ist vielseitig nutzbar und auch mit schweren LKW`s 24/ 7 gut zu erreichen. Die Halle wurde in verschiedene Bereiche aufgeteilt.
Verkaufsraum / Büro 10m x 11m; Höhe ca. 2,68m
weiterer Raum 8,7m x 6m; Höhe ca. 2,68m
Empore ca. 17m x...
Ausstattung
Die Halle ist nicht beheizt.
LKW-Rampe, Rolltor,
2 - Räume gefliest.
Der Betonboden in den Hallen ist für Belastungen geeignet.
Die Nebenkosten werden individuell nach Absprache vereinbart.
Preisinformation
Nettokaltmiete: 4.600,00 EUR
Weitere Informationen
Sonstiges
Verbraucherinformationen - https://lbs-immosw.de/verbraucherinfo/
Stichworte
Stellplatz vorhanden, Gesamtfläche: 1.100,00 m², Hallenhöhe: 5,00 m, Bundesland: Hessen, 1 Etagen
Anbieter der Immobilie
LBS Immobilien GmbH Südwest - Büro Worms
Marktplatz 35, 67547 Worms
Online-ID: 2njyx5t
Referenznummer: 351-05186
Finde Angebote wie dieses
Hier geht es zu unserem Impressum, den Allgemeinen Geschäftsbedingungen, den Hinweisen zum Datenschutz und nutzungsbasierter Online-Werbung.