
Garant Immobilien München GmbH
Büro Augsburg
082 ···
Nr. anzeigenPreise & Kosten
Provision für Käufer
2,38 % (inkl. MwSt.) inkl. MwSt.
Die Maklercourtage für den Käufer beträgt 2 % aus dem Kaufpreis zuzüglich der gesetzlichen MwSt., somit gesamt 2,38 %.
Lage
Die Immobilie befindet sich im lebendigen Stadtteil Augsburg-Oberhausen und besticht durch eine exzellente Infrastruktur sowie die direkte Nähe zum pulsierenden Stadtleben. Bewohner profitieren hier von einer perfekten Vernetzung und kurzen Wegen im Alltag, da Supermärkte, Apotheken und Postfilialen in maximal fünf Gehminuten...
Das Haus
Kategorie
Mehrfamilienhaus
Baujahr
1968
Bezug
vermietet
Derzeitige Nutzung
vermietet
Energie & Heizung
Warum sehe ich diese Anzeige? – Du siehst diese Anzeige basierend auf Ihrer Navigation auf unserer Website und den Suchkriterien, die du verwendet hast.
Energieausweistyp
Verbrauchsausweis
Gebäudetyp
Wohngebäude
Baujahr laut Energieausweis
1968
Wesentliche Energieträger
Gas
Gültigkeit
seit 03.03.2026
Effizienzklasse
D
Endenergieverbrauch
106,36 kWh/(m²·a)
Weitere Energiedaten
Energieträger
Gas
Heizungsart
Zentralheizung
Details
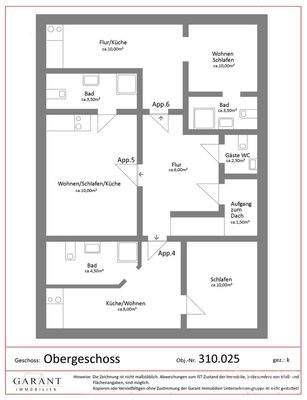
Objektbeschreibung
Diese im Jahr 1968 massiv errichtete Mehrfamilienhaus bietet eine seltene Kombination aus urbaner Zentralität und erstklassigem Wertsteigerungspotenzial. Auf einer Gesamtwohnfläche von ca. 160 qm verteilen sich sechs effizient geschnittene Wohneinheiten, die sich in einem guten und gepflegten Zustand präsentieren. Die...
Ausstattung
- Moderne Sanierung 2023: Jede der Wohneinheiten
wurde frisch saniert und auf einen zeitgemäßen
Standard gebracht.
- Gute Energieeffizienz: Eine im Jahr 2014 modernisierte Heizung
sorgt für Zuverlässigkeit und energetische Stabilität.
- Sechs Wohneinheiten: Jede der Einheiten verfügt über eine
...
Preisinformation
Nettorendite Ist in %: 6
Nettorendite Soll in %: 8
Soll-Mieteinnahmen pro Jahr: 60.000,00 EUR
Ist-Mieteinnahmen pro Jahr: 42.000,00 EUR
Weitere Informationen
Sonstiges
Energieverbrauchsausweis
Energiekennwert: 106,36 kWh/(qm*a)
Energieeffizienz: Klasse D (<130)
Heizung: Zentralheizung mit Gas
Baujahr laut Energieausweis: 1968
2 x Garage, 4 x Stellplatz außen
Stichworte
Garage vorhanden, Anzahl der Schlafzimmer: 6, Anzahl der Badezimmer: 6, 2...
Anbieter der Immobilie
Garant Immobilien München GmbH
Kistlerhofstraße 170, 81379 München
Online-ID: 2njxy5t
Referenznummer: 310.025
Finde Angebote wie dieses
Hier geht es zu unserem Impressum, den Allgemeinen Geschäftsbedingungen, den Hinweisen zum Datenschutz und nutzungsbasierter Online-Werbung.