
Loosen & de Graaf Holding GmbH
Herr Elvis Delic
024 ···
Nr. anzeigenPreise & Kosten
Provision für Käufer
3,57% inkl. 19% MwSt vom Kaufpreis
3,57 % Käuferprovision inkl. MwSt. verdient und fällig mit Beurkundung des notariellen Kaufvertrages. Weitere Informationen siehe Provisionshinweis.
Lage
Makrolage:
Die Immobilie befindet sich in Aachen, einer traditionsreichen und zugleich modernen Großstadt im Westen Nordrhein-Westfalens. Die Lage im Dreiländereck zu Belgien und den Niederlanden verleiht Aachen eine hohe internationale Bedeutung. Als bedeutender Hochschul- und Forschungsstandort sowie als Wirtschafts- und...
Die Wohnung
Wohnungslage
1. Geschoss
Bezug
sofort
Wohnanlage
Energie & Heizung
Warum sehe ich diese Anzeige? – Du siehst diese Anzeige basierend auf Ihrer Navigation auf unserer Website und den Suchkriterien, die du verwendet hast.
Energieausweistyp
Verbrauchsausweis
Gebäudetyp
Wohngebäude
Wesentliche Energieträger
Öl
Endenergieverbrauch
127,00 kWh/(m²·a)
Weitere Energiedaten
Energieträger
Öl
Heizungsart
Zentralheizung
Details
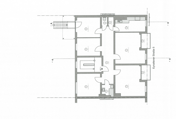
Objektbeschreibung
Sie suchen viel Platz für Ihre Familie und wünschen sich zusätzlich einen eigenen Garten?
Dann ist diese Wohnung in einem gepflegten 8-Parteien-Haus mit bereits gedämmter Fassade genau das Richtige für Sie.
Auf ca. 140 m² Wohnfläche bietet die Immobilie einen durchdachten Grundriss mit zentralem Flur und fünf...
Weitere Informationen
Provisionshinweis
3,57% inkl. 19% MwSt vom Kaufpreis
3,57 % Käuferprovision inkl. MwSt. verdient und fällig mit Beurkundung des notariellen Kaufvertrages. Der Immobilienmakler hat einen Provisionspflichtigen Maklervertrag mit dem Verkäufer in mind. gleicher Höhe abgeschlossen
Sonstiges
Alle in diesem Exposé...
Anbieter der Immobilie
Loosen & de Graaf Holding GmbH
Wilhelmstraße 16, 52070 Aachen
Online-ID: 2njxb5z
Referenznummer: 5153236
Finde Angebote wie dieses
Hier geht es zu unserem Impressum, den Allgemeinen Geschäftsbedingungen, den Hinweisen zum Datenschutz und nutzungsbasierter Online-Werbung.