

Kraft Immobilien
Herr/Frau Korbinian Kraft
+49 ···
Nr. anzeigenPreise & Kosten
Kaution
3 Kaltmieten
Warum sehe ich diese Anzeige? – Du siehst diese Anzeige basierend auf Ihrer Navigation auf unserer Website und den Suchkriterien, die du verwendet hast.
Lage
Die Wohnung befindet sich inmitten des Naherholungsgebietes Bad Füssing. Im Ort finden Sie fußläufig alle Dinge des täglichen Bedarfs, und sind durch das perfekt ausgebaute Nahverkehrsnetz auch mit den Bad Füssinger Thermen und den Nachbarorten verbunden. Mit seiner wunderschönen Landschaft mit idyllischen Flussauen bietet...
Die Wohnung
Wohnungslage
Erdgeschoss
Bezug
nach Absprache
Wohnanlage
Energie & Heizung
Warum sehe ich diese Anzeige? – Du siehst diese Anzeige basierend auf Ihrer Navigation auf unserer Website und den Suchkriterien, die du verwendet hast.
Energieausweistyp
Bedarfsausweis
Gebäudetyp
Wohngebäude
Wesentliche Energieträger
Gas
Gültigkeit
23.06.2023 bis 23.06.2033
Effizienzklasse
C
Endenergiebedarf
872,00 kWh/(m²·a)
Weitere Energiedaten
Energieträger
Gas
Heizungsart
Zentralheizung
Details
Objektbeschreibung
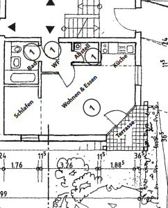
Top aktuell bieten wir Ihnen diese 1-Zimmer-Wohnung mit sonniger Terrasse an!
Die lichtdurchflutete Wohnung ist aufgeteilt in einen geräumigen Wohn-Ess-Kochbereich und einen kleinen, Schlafbereich. Das Badezimmer beinhaltet eine Badewanne und ist mit pflegeleichtem, zeitlosen Fließen ausgestattet. Des Weiteren befindet...
Ausstattung
- eigene, sonnige Terrasse
- gemeinsamer Waschraum
- Fahrradraum
- großzügiges eigenes Kellerabteil
- Hausmeisterservice und versierte Hausverwaltung
Weitere Informationen
Sonstiges
Haben wir Ihr Interesse geweckt? Dann nutzen Sie bitte das Kontaktformular in der Anzeige und schreiben uns darüber eine E-Mail. Ein ausführliches Expose senden wir Ihnen gerne nach vollständiger Kontaktanfrage.
Alle Angaben in diesem Exposé wurden sorgfältig und so vollständig wie möglich erstellt. Die...
Anbieter der Immobilie

Online-ID: 2njww5r
Referenznummer: 25-WM-PA15W1
Finde Angebote wie dieses
Hier geht es zu unserem Impressum, den Allgemeinen Geschäftsbedingungen, den Hinweisen zum Datenschutz und nutzungsbasierter Online-Werbung.