
Pegasus Real Estate Partners GmbH
Frau Adriana Severino
Kontaktiere den Anbieter schriftlich, es ist keine Telefonnummer hinterlegt.
Preise & Kosten
Kaution
5.505 €
Warum sehe ich diese Anzeige? – Du siehst diese Anzeige basierend auf Ihrer Navigation auf unserer Website und den Suchkriterien, die du verwendet hast.
Lage
Die oberbayerische Gemeinde Gauting liegt südwestlich von München und zeichnet sich durch ihre attraktive Lage zwischen der bayerischen Metropole und dem Voralpenland aus. Die beliebten Seen Starnberger See und Ammersee liegen nur wenige Autominuten entfernt und die bayerische Hauptstadt ist mit der S-Bahn und dem Auto...
Die Wohnung
Wohnungslage
1. Geschoss
Bezug
01.05.2026
Wohnanlage
Energie & Heizung
Warum sehe ich diese Anzeige? – Du siehst diese Anzeige basierend auf Ihrer Navigation auf unserer Website und den Suchkriterien, die du verwendet hast.
Energieausweistyp
Bedarfsausweis
Gebäudetyp
Wohngebäude
Baujahr laut Energieausweis
2021
Wesentliche Energieträger
KWK fossil
Gültigkeit
seit 01.05.2014
Effizienzklasse
A
Endenergiebedarf
46,50 kWh/(m²·a)
Details
Objektbeschreibung
Die gemischt genutzte Immobilie wurde im Jahr 2021 fertig gestellt. Zu den Einzelhandelsflächen gehören unter anderem ein EDEKA und dm-Markt. Es befindet sich außerdem eine Kinderarztpraxis sowie eine Logopädie-Praxis vor Ort. Insgesamt sind 52 Wohnungen auf 3.775 m² in der Anlage vorhanden. Die Tiefgarage bietet 96...
Ausstattung
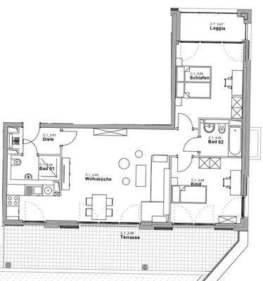
Die 3-Zimmer-Wohnung im 1. Obergeschoss bietet zwei moderne Badezimmer (eines davon mit Badewanne) und überzeugt durch eine gut durchdachte Raumaufteilung, die dem beigefügten Grundriss entnommen werden kann.
Bei den abgebildeten Fotos handelt es sich um Beispielbilder aus dem Objekt.
Weitere Informationen
Sonstiges
WICHTIG:
Besichtigungen werden nur nach Zusendung einer Mieterselbstauskunft (siehe unter Dokumente) durchgeführt.
Dokumente
Anbieter der Immobilie
Pegasus Real Estate Partners GmbH
Nägelsbachstraße 33, 91052 Erlangen
Frau Adriana Severino
Dein Ansprechpartner
Kontaktiere den Anbieter schriftlich, es ist keine Telefonnummer hinterlegt.
Online-ID: 2nju95p
Finde Angebote wie dieses
Hier geht es zu unserem Impressum, den Allgemeinen Geschäftsbedingungen, den Hinweisen zum Datenschutz und nutzungsbasierter Online-Werbung.