Immobilien Eger

Frau Carmen Eger

Helle Büro- und Praxisflächen auf zwei Etagen - flexibel nutzbar!

€ 4.130
Nettomiete zzgl. NK
450 m²
Bürofläche ca.
k.A.
Teilbare Fläche
k.A.
Zimmer

Der Anbieter dieses Objekts hat gegenüber der AVIV Germany GmbH als Betreiber dieses Online-Marktplatzes erklärt, nicht als Unternehmer im Sinne des § 1 KSchG zu handeln. Die im Verbraucherschutzrecht der Union verankerten Verbraucherrechte (insbesondere Informationspflichten und Rücktritts- bzw. Widerrufsrechte) finden auf den Vertrag zwischen dem Anbieter des Objekts und Ihnen (dem Interessenten) keine Anwendung.

Gewerblicher Anbieter

Der Anbieter dieses Objekts hat gegenüber der AVIV Germany GmbH als Betreiber dieses Online-Marktplatzes erklärt, als Unternehmer im Sinne des § 1 KSchG zu handeln.

AdresseStraße nicht freigegeben
72141 Walddorfhäslach 
Auf Karte ansehen

Preise & Kosten

Nettomiete € 4.130 Nebenkosten € 600

Kaution

8260

Provision für Mieter

Bitte beachte, das Angebot kann bei Vertragsabschluss die Zahlung einer Provision beinhalten. Weitere Informationen erhältst Du vom Anbieter.

Lage

72141 Walddorfhäslach, Schlattgrabenstraße 13
Direkt neben der B27 Tübingen-Stuttgart gelegen, ist dieses attraktive Wohn- und Geschäftshaus bestens an die Region angebunden. In 15 bis 30 Fahrminuten ist man in Tübingen, Reutlingen und im Zollernalbkreis oder am Flughafen Stuttgart, auf der A8 nach München oder Karlsruhe -...

Mehr anzeigen

Büro-/Praxisfläche

Kategorie

Bürokomplex

Baujahr

2002

Bezug

sofort

  • 11 Stellplätze

Energie & Heizung

Wärme

0 100 200 300 400 500 600 700 800 900 1000 +

Energieausweistyp

Verbrauchsausweis

Gebäudetyp

Nicht-Wohngebäude

Baujahr laut Energieausweis

2002

Wesentliche Energieträger

Öl

Gültigkeit

18.06.2026 bis 18.06.2034

Endenergieverbrauch (Wärme)

83,00 kWh/(m²·a)

Weitere Energiedaten

Energieträger

Öl

Heizungsart

Zentralheizung

Details

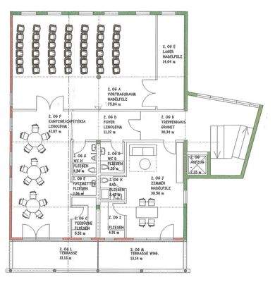
Objektbeschreibung

Ihr neuer Unternehmensstandort - modern und vielseitig!

Profitieren Sie von der exzellenten Lage in Walddorfhäslach, direkt an der B27, mit sehr guter Verkehrsanbindung. Das erste und zweite Obergeschoss bieten insgesamt ca. 455 m² Nutzfläche, ideal für Büros, Arztpraxen, Physiotherapie oder...

Mehr anzeigen

Ausstattung

Highlights auf einen Blick
* Flexible Büro-, Praxis- oder Gesundheitsflächen auf zwei Etagen
* Großes, helles Treppenhaus
* 2.OG mit Balkon & großem Aufenthaltsraum
* Klimaanlage in Teilbereichen vorhanden
Jede Etage mit:
* eigener Einbauküche
* Damen- und Herren-WCs
* Serverraum
* Putzraum
*...

Mehr anzeigen

Weitere Informationen

Sonstiges
Alle Angaben nach bestem Wissen. Dem Mieter gegenüber entsteht keine Maklerprovision. Dieses Exposé ist eine Vorinformation, als Rechtsgrundlage gilt allein der abgeschlossene Mietvertrag.

Es fallen 2 Monatsmieten Kaution an!

Alle Preisangaben verstehen sich zuzüglich der gesetzlichen Mehrwertsteuer...

Mehr anzeigen

Dokumente

file_pdfEnergieausweis Bürogebäude.pdfangle_right

Anbieter der Immobilie

Partner

Immobilien Eger

im Durchschnitt  4,90  Sterne
(bei 8 Bewertungen)

Dietrich-Bonhoeffer-Straße 9/1, 70794 Filderstadt

user

Frau Carmen Eger

Dein Ansprechpartner

Anbieter-Website Anbieter-Profil Anbieter-Impressum

Online-ID: 2njrk5m

Referenznummer: 0078 (1/105)

Finde Angebote wie dieses

imageimageimage

Hier geht es zu unserem Impressum, den Allgemeinen Geschäftsbedingungen, den Hinweisen zum Datenschutz und nutzungsbasierter Online-Werbung.