

Bartsch Immobilien GmbH
Herr Dieter Krauß
081 ···
Nr. anzeigenPreise & Kosten
Provision für Käufer
provisionsfrei
Lage
Dort, wo der Inn die Berge verlässt, der Föhn viel Sonne bringt und der Regen die Wiesen saftig färbt befindet sich Stephanskirchen. Mit etwa 10.500 Einwohnern liegt die Stadt im oberbayerischen Landkreis Rosenheim. Als eigenständige Gemeinde mit vollständiger und umfassender Infrastruktur vereint Stephanskirchen die Vorteile...
Die Wohnung
Wohnungslage
Erdgeschoss
Wohnanlage
Energie & Heizung
Warum sehe ich diese Anzeige? – Du siehst diese Anzeige basierend auf Ihrer Navigation auf unserer Website und den Suchkriterien, die du verwendet hast.
Energieausweistyp
Bedarfsausweis
Gebäudetyp
Wohngebäude
Baujahr laut Energieausweis
2021
Wesentliche Energieträger
LUFTWP
Gültigkeit
22.11.2021 bis 21.11.2031
Effizienzklasse
A+
Endenergiebedarf
15,20 kWh/(m²·a)
Details
Objektbeschreibung
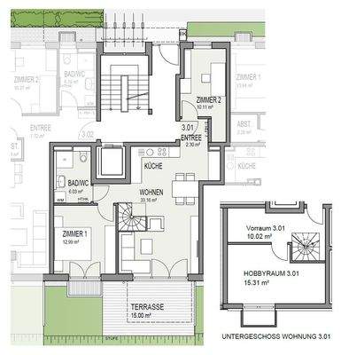
Im Erdgeschoss steht neben dem ca. 33 m² großen Wohn- und Esszimmer im Verbund mit der offenen Küche zwei Schlafzimmer mit ca. 10 m² und ca.13 m² zur Verfügung. Durch die wohnungsinterne Treppe erreichen Sie den ca. 15 m² großen Hobbyraum im Untergeschoss. Abgerundet wird die Planung durch eine 15 m² große Terrasse und einem...
Ausstattung
- Massive Ziegelbauweise
- Fußbodenheizung
- Bad mit unter anderem bodentiefer Dusche
- KfW-Effizienzhaus 55 mit Luft-Wasser-Wärmepumpe
- Tiefgarage mit Einzelstellplätzen
- Aufzug vom Untergeschoss bis in das Dachgeschoss
- Südausrichtung bei Balkonen, Terrassen und Gärten
Preisinformation
1 Stellplatz, Kaufpreis: 8.000,00 EUR
1 Tiefgaragenstellplatz, Kaufpreis: 26.500,00 EUR
Weitere Informationen
Sonstiges
Alle Daten sind uns vom Auftraggeber zur Verfügung gestellt worden. Wir übernehmen keine Gewähr für die Vollständigkeit und Richtigkeit dieser Informationen. Einen Zwischenverkauf behalten wir uns vor.
360° - https://www.bartsch-immo.de/360/alpenblick-301/
Stichworte
Tiefgarage vorhanden...
Anbieter der Immobilie

Online-ID: 2njkp5x
Referenznummer: 14384
Finde Angebote wie dieses
Hier geht es zu unserem Impressum, den Allgemeinen Geschäftsbedingungen, den Hinweisen zum Datenschutz und nutzungsbasierter Online-Werbung.