

CUBION Immobilien AG
Herr Marvin Prochowski
+49 ···
Nr. anzeigenPreise & Kosten
Provision für Mieter
provisionsfrei
Warum sehe ich diese Anzeige? – Du siehst diese Anzeige basierend auf Ihrer Navigation auf unserer Website und den Suchkriterien, die du verwendet hast.
Lage
Mitten im Herzen Dortmunds: Die Innenstadt ist das pulsierende Zentrum der Ruhrmetropole und bietet eine erstklassige Lage für Unternehmen, die Wert auf Sichtbarkeit, Kundenfrequenz und kurze Wege legen. Zahlreiche Einkaufsstraßen mit hoher Passantenfrequenz, ein vielfältiges Gastronomie- und Caféangebot sowie sämtliche...
Büro-/Praxisfläche
Baujahr
1984
Bezug
nach Vereinbarung
Energie & Heizung
Warum sehe ich diese Anzeige? – Du siehst diese Anzeige basierend auf Ihrer Navigation auf unserer Website und den Suchkriterien, die du verwendet hast.
Wärme
Strom
Energieausweistyp
Verbrauchsausweis
Gebäudetyp
Nicht-Wohngebäude
Baujahr laut Energieausweis
2011
Gültigkeit
bis 25.04.2028
Endenergieverbrauch (Wärme)
48,60 kWh/(m²·a) - Warmwasser enthalten
Endenergieverbrauch (Strom)
17,30 kWh/(m²·a) - Warmwasser enthalten
Weitere Energiedaten
Energieträger
Fernwärme
Details
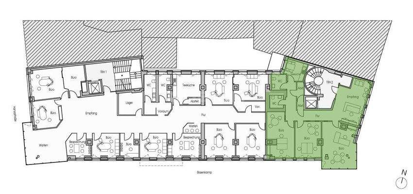
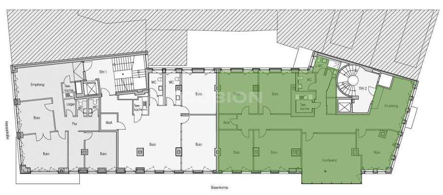
Objektbeschreibung
Die angebotenen Büroflächen befinden sich in zentraler Innenstadtlage von Dortmund und bieten Unternehmen ein professionelles Arbeitsumfeld mit hoher Flexibilität und ausgezeichneter Erreichbarkeit. Das Gebäude verfügt über mehrere zusammenhängende Büroetagen, die sowohl einzeln als auch in Kombination angemietet werden...
Ausstattung
Bodenbelag: Teppichboden, PVC in Holzoptik
EDV-Verkabelung: CAT 6
Kabelführung: Bodentanks
Kühlung: Vollklimatisierung
Sonnenschutz: außen liegend elektrisch
Küche: Anschlüsse vorinstalliert
Aufzug: Personenaufzug
Heizung: Fernwärme
Barrierearm: behindertengerecht
Baujahr: 1984, Kernsanierung...
Weitere Informationen
Sonstiges
Dieses Angebot ist provisionsfrei für den Mieter!
Alle Informationen in diesem Exposé beruhen auf Angaben, die wir vom Vermieter erhalten haben. Für Richtigkeit und Vollständigkeit übernehmen wir keine Gewähr. Zwischenvermietung vorbehalten. Die Grundrisse müssen nicht mit der aktuellen Raumaufteilung...
Anbieter der Immobilie

CUBION Immobilien AG
Akazienallee 65, 45478 Mülheim

Online-ID: 2njj856
Referenznummer: 1351/G1/E5/Eh2
Finde Angebote wie dieses
Hier geht es zu unserem Impressum, den Allgemeinen Geschäftsbedingungen, den Hinweisen zum Datenschutz und nutzungsbasierter Online-Werbung.