
Schwabenhaus München - Oliver Kurtz Handelsvertretung für die Schwabenhaus GmbH
Oliver Kurtz
Kontaktiere den Anbieter schriftlich, es ist keine Telefonnummer hinterlegt.
Preise & Kosten
Provision für Käufer
2,38 % inkl. MwSt auf den Grundstücksanteil inkl. MwSt.
Gilt nur für den Grundstücksanteil; Haus provisionsfrei. Grundstückspreis variabel, genaue Berechnung vor Maklervertragsabschluss.
Lage
Holzkirchen, das Tor zum bayerischen Oberland mit direkter Autobahnanbindung nach München und gen Süden bietet eine perfekte Infrastruktur für Ihr neues Eigenheim.
Das angebotene Objekt befindet sich in einer ruhigen und wenig befahrenen Anliegerstraße von Holzkirchen, umgeben von Ein und Zweifamilienhäusern, und...
Das Haus
Kategorie
Doppelhaushälfte
Energie & Heizung
Warum sehe ich diese Anzeige? – Du siehst diese Anzeige basierend auf Ihrer Navigation auf unserer Website und den Suchkriterien, die du verwendet hast.
Weitere Energiedaten
Heizungsart
Fußbodenheizung
Details
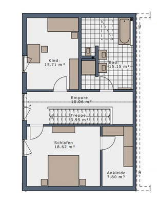
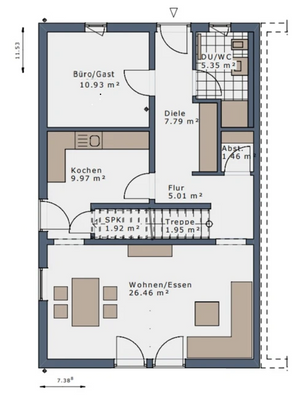
Objektbeschreibung
In einer gewachsenen und ruhigen Wohngegend von Holzkirchen entsteht dieses moderne und hochwertige Doppelhaus, das zeitgemäßes Wohnen mit hohem Komfort verbindet. Die angebotene Doppelhaushälfte bietet mit ca. 145 m² Wohnfläche, verteilt auf drei Etagen, großzügigen Raum für die ganze Familie.
Ein besonderes Highlight...
Ausstattung
Neben kurzen Bauzeiten, innovativer Haustechnik, attraktiver Architektur und hochwertiger Manufaktur-Qualität bietet Ihnen
das angebotene Schwabenhaus im "Green-Edition" All-Inclusive-Paket folgende Mehr-Werte:
- Klima-Komfort-Bauweise für das Effizienzhaus 55
- Keller
- Zimmermannsmäßiges Pfettendach
-...
Weitere Informationen
Sonstiges
Das Haus ist projektiert inkl. Grundstück. Das Grundstück wird in Kommission angeboten bzw. direkt von Dritten verkauft wie es steht und liegt.
Die Bauabwicklung kann kurzfristig nach Grundstückserwerb begonnen werden. Bilder zeigen möglicherweise Sonderausstattungen, die auf Wunsch gegen Preiskorrektur...
Anbieter der Immobilie
Schwabenhaus München - Oliver Kurtz Handelsvertretung für die Schwabenhaus GmbH
Senator-Gerauer-Str. 25, 85586 Poing-Grub
Oliver Kurtz
Dein Ansprechpartner
Kontaktiere den Anbieter schriftlich, es ist keine Telefonnummer hinterlegt.
Online-ID: 2njj45x
Referenznummer: SH-374608
Finde Angebote wie dieses
Hier geht es zu unserem Impressum, den Allgemeinen Geschäftsbedingungen, den Hinweisen zum Datenschutz und nutzungsbasierter Online-Werbung.