
Immobiliefürmich GmbH
Herr Erik Margraf
+49 ···
Nr. anzeigenPreise & Kosten
Provision für Käufer
3,57 % inkl. der gesetzlichen Mehrwertsteuer (19 %).
Abschreibung/Anlage
als Kapitalanlage geeignet
Lage
Golzheim zählt zu den stabilsten und wertbeständigsten Wohnlagen Düsseldorfs. Die Nähe zum Rhein, zur Innenstadt, zum Messe- und Business-Standort sowie die hervorragende Verkehrsanbindung schaffen eine Lage, die Eigennutzer wie Kapitalanleger gleichermaßen überzeugt.
Hier treffen Ruhe, Urbanität und nachhaltige Nachfrage...
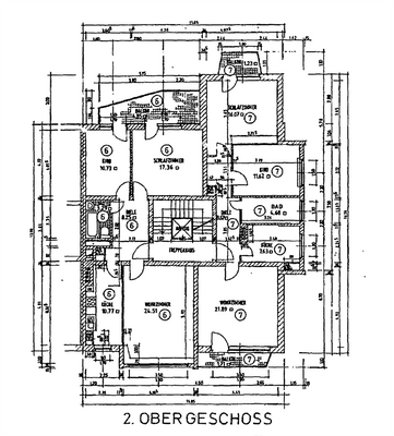
Die Wohnung
Wohnungslage
2. Geschoss
Bezug
01.05.2026
Derzeitige Nutzung
frei
Wohnanlage
Energie & Heizung
Warum sehe ich diese Anzeige? – Du siehst diese Anzeige basierend auf Ihrer Navigation auf unserer Website und den Suchkriterien, die du verwendet hast.
Energieausweistyp
Verbrauchsausweis
Gebäudetyp
Wohngebäude
Baujahr laut Energieausweis
1964
Wesentliche Energieträger
Gas
Gültigkeit
06.03.2018 bis 05.03.2028
Effizienzklasse
D
Endenergieverbrauch
123,90 kWh/(m²·a)
Weitere Energiedaten
Energieträger
Gas
Heizungsart
Zentralheizung
Details
Objektbeschreibung
Diese beiden sanierungsbedürftigen 3-Zimmer-Wohnungen eröffnen eine seltene Möglichkeit zur Zusammenlegung zu einer großzügigen 6-7-Zimmer-Wohnung mit rund 154 m² Wohnfläche. Die aktuelle Substanz bietet dabei eine ideale Grundlage, um ein individuelles Wohnkonzept nach eigenen Vorstellungen zu realisieren.
Durch den...
Ausstattung
- Sanierungsbedürftiger Gesamtzustand
- Klassischer Grundriss mit guter Raumaufteilung
- Solide Bausubstanz als Basis für Modernisierung
- Gestaltungsfreiheit bei Materialien, Grundrissdetails und Ausstattung
- Ideal für Eigennutzer mit Anspruch oder Anleger mit Fokus auf Werthebel
Option: Sanierung als...
Weitere Informationen
Sonstiges
Courtage Die Courtage in Höhe von 3,57 % inkl. der gesetzlichen Mehrwertsteuer auf den Kaufpreis ist mit dem Zustandekommen des Kaufvertrages (notarieller Vertragsabschluss) verdient und fällig. Die Vermittelnden und/oder Nachweisenden, Francisco Bravo & Waldemar Feldmann GbR und ggf. deren Beauftragter...
Anbieter der Immobilie
Immobiliefürmich GmbH
Monheimer Str. 26, 40789 Monheim am Rhein
Online-ID: 2njhb5s
Referenznummer: 1629 (1/1629)
Finde Angebote wie dieses
Hier geht es zu unserem Impressum, den Allgemeinen Geschäftsbedingungen, den Hinweisen zum Datenschutz und nutzungsbasierter Online-Werbung.