
VON POLL IMMOBILIEN Landsberg am Lech - Dirk Bolsinger
Shop Landsberg am Lech VON POLL IMMOBILIEN
004 ···
Nr. anzeigenPreise & Kosten
Provision für Käufer
Käuferprovision beträgt 3,57 % (inkl. MwSt.) des beurkundeten Kaufpreises
Lage
Diese Region gehört zum Erlebnisraum Schlosspark Allgäu und bietet eine hohe Lebensqualität für Menschen, die Natur, Ruhe und aktive Erholung schätzen. Zahlreiche Rad- und Wanderwege, Naherholungsgebiete sowie Seen und Aussichtspunkte prägen das Umfeld. Gleichzeitig bestehen kurze Wege in die Städte Kaufbeuren und Bad...
Das Haus
Kategorie
Einfamilienhaus
Baujahr
2020
Energie & Heizung
Warum sehe ich diese Anzeige? – Du siehst diese Anzeige basierend auf Ihrer Navigation auf unserer Website und den Suchkriterien, die du verwendet hast.
Energieausweistyp
Bedarfsausweis
Gebäudetyp
Wohngebäude
Baujahr laut Energieausweis
2020
Wesentliche Energieträger
UMWELTWAERME
Gültigkeit
bis 25.05.2031
Effizienzklasse
A+
Endenergiebedarf
18,30 kWh/(m²·a)
Weitere Energiedaten
Haustyp
Holzhaus
Energieträger
Elektro
Details
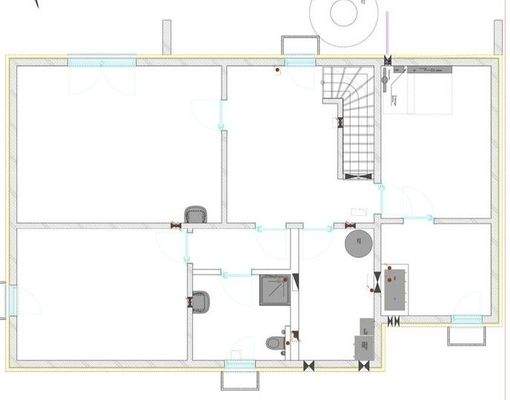
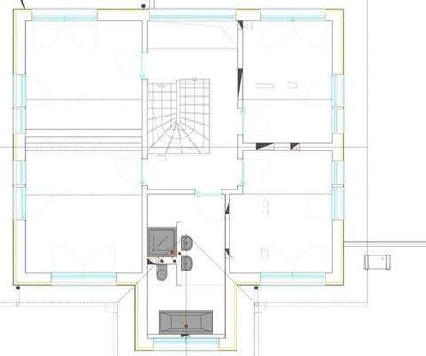
Objektbeschreibung
Dieses moderne und energetisch sehr hochwertige Einfamilienhaus (Energieklasse A+) besticht durch seine nachhaltige Bauweise, durchdachte Raumaufteilung und seine stilvollen Details. Es befindet sich in einem ruhigen und besonders familienfreundlichen Neubauviertel und bietet direkt angrenzend an das Grundstück einen...
Ausstattung
- direkt angrenzender Spielplatz
- Energieeffizienzklasse A+
- Offene Deckenhöhe bis in den Dachspitz
- Spotlights im gesamten Haus
- KNX Bussystem
- Echtholzparkett im Wohnbereich und den Schlafräumen
- maßgefertigte Küche in U-Form (Neupreis ca. 16.500?€)
- Flur mit...
Preisinformation
3 Stellplätze
1 Garagenstellplatz
Weitere Informationen
Stichworte
Nutzfläche: 78,00 m², Anzahl der Schlafzimmer: 4, Anzahl der Badezimmer: 2, Anzahl Terrassen: 1, Balkon-Terrassen-Fläche: 25,00 m², Bundesland: Bayern, 3 Etagen, Distanz zum Kindergarten: 1.00, Distanz zur Grundschule: 4.00, Distanz zur Realschule: 10.00, Distanz zur nächsten Einkaufsmöglichkeit: 7.00, Distanz...
Anbieter der Immobilie
VON POLL IMMOBILIEN Landsberg am Lech - Dirk Bolsinger
Hinterer Anger 305, 86899 Landsberg am Lech
Online-ID: 2njgk5p
Referenznummer: 25 142 046
Finde Angebote wie dieses
Hier geht es zu unserem Impressum, den Allgemeinen Geschäftsbedingungen, den Hinweisen zum Datenschutz und nutzungsbasierter Online-Werbung.