LP Immobilien

Herr Philipp Distel

4-Zimmer-Maisonettewohnung mit Charme und freigelegten Balken *Erstbezug nach Komplettsanierung*

€ 1.400
Kaltmiete zzgl. NK
163 m²
Wohnfläche ca.
4
Zimmer

Der Anbieter dieses Objekts hat gegenüber der AVIV Germany GmbH als Betreiber dieses Online-Marktplatzes erklärt, nicht als Unternehmer im Sinne des § 1 KSchG zu handeln. Die im Verbraucherschutzrecht der Union verankerten Verbraucherrechte (insbesondere Informationspflichten und Rücktritts- bzw. Widerrufsrechte) finden auf den Vertrag zwischen dem Anbieter des Objekts und Ihnen (dem Interessenten) keine Anwendung.

Gewerblicher Anbieter

Der Anbieter dieses Objekts hat gegenüber der AVIV Germany GmbH als Betreiber dieses Online-Marktplatzes erklärt, als Unternehmer im Sinne des § 1 KSchG zu handeln.

AdresseMarktplatz 6
90584 Allersberg 
Auf Karte ansehen

Preise & Kosten

Kaltmiete € 1.400 Nebenkosten € 300 Heizkosten in Nebenkosten enthalten 1 Stellplatz € 30

Kaution

2 Kaltmieten

Lage

Absolut ZENTRAL ist dieses Objekt gelegen!!!
Der Allersberger Marktplatz bietet sämtliche Einrichtungen des täglichen Bedarfes.

+ Apotheke, Banken, Restaurants, Metzgerei, Supermärkte, Ärzte u.v.m fußläufig erreichbar
+ Busanbindung
+ Entfernung nach Neumarkt: 20km
+ Entfernung nach Nürnberg-Zentrum...

Mehr anzeigen

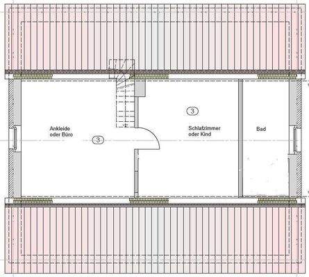
Die Wohnung

Kategorie

Maisonette

Wohnungslage

2. Geschoss

Bezug

nach Vereinbarung

Derzeitige Nutzung

frei

  • Bad mit Fenster, Wanne und Dusche, Gäste-WC
  • Einbauküche
  • Böden: Holzdielen, Fliesenboden
  • Fenster: Holzfenster

Wohnanlage

  • Zustand: Altbau (bis 1945)
  • 1 Stellplatz

Energie & Heizung

info

Energieausweis: für diesen Gebäudetyp nicht notwendig

Weitere Energiedaten

Energieträger

Gas

Heizungsart

Zentralheizung

Details

Objektbeschreibung

Objektbeschreibung
*Ein wahrer Traum für Individualisten und Altbauliebhaber*
Ideale Eignung für platzliebende Paare mit Homeoffice oder Familien mit 1 Kind.

Der Einzugstermin wäre nach Vereinbarung. Voraussichtlich wird die Sanierung der Wohnung zum 31.03.2026 abgeschlossen. Ein Bezug wäre dann also ab...

Mehr anzeigen

Weitere Informationen

Besichtigungstermine
können gerne mit uns vereinbart werden!

Es wäre prima, wenn Sie uns in Ihrer Kontaktanfrage ein paar Informationen zu Ihrer Person nennen könnten (bspw. Beruf, Anzahl der Personen, die einziehen würden, etc.). Vielen Dank.

Wir freuen uns auf Ihre Anfrage. Bitte vergessen Sie nicht Ihre...

Mehr anzeigen

Anbieter der Immobilie

Partner

LP Immobilien

Glockengasse 1, 90559 Burgthann

user

Herr Philipp Distel

Dein Ansprechpartner

Anbieter-Profil Anbieter-Impressum

Online-ID: 2njfl5z

Finde Angebote wie dieses

imageimageimage

Hier geht es zu unserem Impressum, den Allgemeinen Geschäftsbedingungen, den Hinweisen zum Datenschutz und nutzungsbasierter Online-Werbung.