
TerraCon Verwaltungs OHG
Frau Leonie Eytner
+49 ···
Nr. anzeigenPreise & Kosten
Kaution
3 Nettokaltmieten
Provision für Mieter
provisionsfrei
Warum sehe ich diese Anzeige? – Du siehst diese Anzeige basierend auf Ihrer Navigation auf unserer Website und den Suchkriterien, die du verwendet hast.
Lage
Die Gewerbeimmobilie befindet sich in der Nauhausener Straße 10, 09548 Seiffen, einer gut etablierten und frequentierten Lage im staatlich anerkannten Erholungsort Seiffen im Erzgebirge. Seiffen ist überregional bekannt als traditionsreicher Tourismusstandort mit ganzjährigem Besucheraufkommen, insbesondere durch den...
Die Ladenfläche
Bezug
Nach Vereinbarung / Bezug ab sofort möglich
Derzeitige Nutzung
frei
Details
Objektbeschreibung
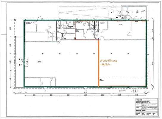
Das Objekt ist als SB-Markt konzipiert und verfügt über eine Gesamtfläche von ca. 955 m², wovon rund 900 m² als Verkaufsfläche genutzt werden. Aktuell gliedert sich die Immobilie in zwei separate Nutzungseinheiten.
Ein Wanddurchbruch zur Zusammenlegung der Einheiten wurde bereits statisch geprüft. Die betreffende Wand...
Weitere Informationen
Sonstiges
Alle Angaben gelten zuzüglich der Umsatzsteuer von derzeit 19 %.
Besichtigungen
Wir freuen uns auf Ihre Anfrage, um mit Ihnen einen Besichtigungstermin zu vereinbaren.
Stichworte
Zustand: renoviert, gepflegt
Anbieter der Immobilie
TerraCon Verwaltungs OHG
Wasastraße 15, 01219 Dresden
Online-ID: 2njd65v
Referenznummer: Neuhausener Str. 10, Seiffen - GE 04/05
Finde Angebote wie dieses
Hier geht es zu unserem Impressum, den Allgemeinen Geschäftsbedingungen, den Hinweisen zum Datenschutz und nutzungsbasierter Online-Werbung.