

VR Bank Heilbronn Schwäbisch Hall eG
Frau Ann-Kathrin Berroth
079 ···
Nr. anzeigenPreise & Kosten
Provision für Käufer
Bitte beachte, das Angebot kann bei Vertragsabschluss die Zahlung einer Provision beinhalten. Weitere Informationen erhältst Du vom Anbieter.
Lage
Das Mehrfamilienhaus befindet sich im Ortskern der Gemeinde Mainhardt. Mainhardt ist bekannt für seine schöne Umgebung und bietet eine perfekte Mischung aus ländlicher Ruhe und städtischer Nähe. Die Region ist geprägt von weitläufigen Wäldern und grünen Hügeln, die zu erholsamen Spaziergängen und Freizeitaktivitäten einladen...
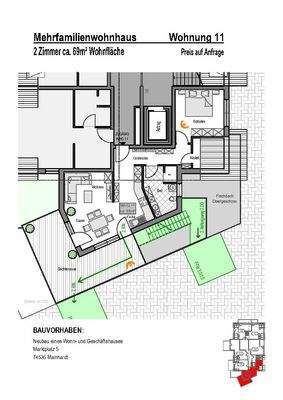
Die Wohnung
Wohnungslage
Dachgeschoss
Bezug
01.09.2026
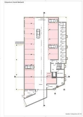
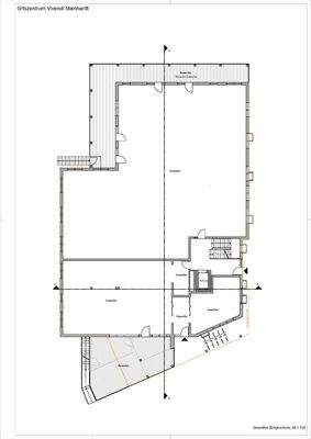
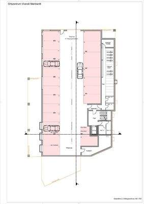
Wohnanlage
Details
Objektbeschreibung
VIVENDI QUARTIER Mainhardt: Hochwertiges Investment & Modernes Wohnen
Willkommen in Ihrem neuen Investment im Herzen von Mainhardt! Das "Vivendi Quartier" vereint Lebensqualität, Gesundheit und modernes Design in einem einzigartigen Wohn- und Geschäftshaus. Ob für zukunftsorientierte Kapitalanleger oder anspruchsvolle...
Ausstattung
- Aufzug
- Tiefgarage
Preisinformation
2 Tiefgaragenstellplätze, Kaufpreis je: 27.000,00 EUR
Weitere Informationen
Stichworte
Grundstücksfläche: 2.282,00 m², Anzahl Terrassen: 1
Anbieter der Immobilie

Online-ID: 2njbd5v
Referenznummer: 17565_11
Finde Angebote wie dieses
Hier geht es zu unserem Impressum, den Allgemeinen Geschäftsbedingungen, den Hinweisen zum Datenschutz und nutzungsbasierter Online-Werbung.