

ImmobilienCenter der Volksbank Freiburg eG
Herr Ralf Schneider
+49 ···
Nr. anzeigenPreise & Kosten
Provision für Käufer
provisionsfrei
Lage
Das Neubauprojekt Drei-Ährenstraße entsteht im südwestlichen Teil von Freiburg-Haslach, einem gewachsenen, lebendigen Stadtteil, der urbanes Lebensgefühl mit grüner Umgebung und hoher Lebensqualität verbindet.
Natur und Naherholung
Direkt von der Wohnanlage aus über kurze Fußwege erreichbar befinden sich ein...
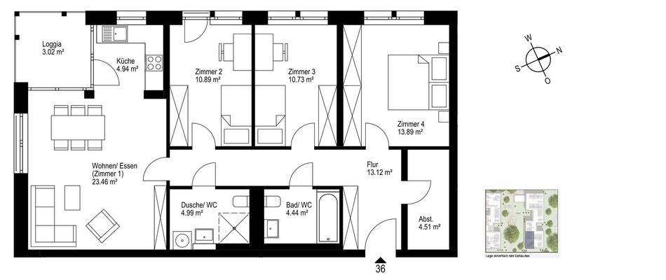
Die Wohnung
Wohnungslage
3. Geschoss
Wohnanlage
Energie & Heizung
Warum sehe ich diese Anzeige? – Du siehst diese Anzeige basierend auf Ihrer Navigation auf unserer Website und den Suchkriterien, die du verwendet hast.
Energieausweistyp
Bedarfsausweis
Gebäudetyp
Wohngebäude
Baujahr laut Energieausweis
2025
Wesentliche Energieträger
Fernwärme
Gültigkeit
bis 15.05.2034
Effizienzklasse
A
Endenergiebedarf
37,00 kWh/(m²·a)
Weitere Energiedaten
Energieträger
Fernwärme
Haustyp
KfW 55
Heizungsart
Fußbodenheizung, Zentralheizung
Details
Objektbeschreibung
Kurzbeschreibung
Ihr neues Kapitel: "Drei-Ähren-Straße"
Objekt
Stellen Sie sich vor, Sie kommen nach Hause - umgeben von viel Grün, lichtdurchfluteten Räumen und einer Architektur, die modernes Wohnen mit natürlicher Lebensqualität verbindet.
In Freiburg-Haslach entsteht mit der "Drei-Ähren-Straße"...
Ausstattung
Individuelle Ausstattungsmerkmale:
- Photovoltaikanlage
- Nah-/Fernwärmeanschluss
- Neubauwohnung
Anspruchsvoll bis ins Detail
- Fertigstellung Frühjahr 2028
- Jede Wohnung mit privatem Außenbereich: Terrassen im Erdgeschoss, Loggien in den Obergeschossen
- 3-fach-Wärmeschutzverglasung und...
Weitere Informationen
Sonstiges
Provisionshinweis:
Diese Immobilie wird so angeboten, dass kein Maklervertrag mit dem Kaufinteressenten abgeschlossen wird. Die Vergütung bei der Vermittlung dieser Immobilie trägt ausschließlich der Verkäufer. Der Immobilienmakler ist der alleinige Interessenvertreter des Verkäufers und vereinbart mit dem...
Anbieter der Immobilie

ImmobilienCenter der Volksbank Freiburg eG

Online-ID: 2njbb5z
Referenznummer: 2026 -2655-36 Haus 8
Finde Angebote wie dieses
Hier geht es zu unserem Impressum, den Allgemeinen Geschäftsbedingungen, den Hinweisen zum Datenschutz und nutzungsbasierter Online-Werbung.