

Wohnbau GmbH Prenzlau
Team Vermietungsexperten
039 ···
Nr. anzeigenPreise & Kosten
Kaution
1.200,00 €
Warum sehe ich diese Anzeige? – Du siehst diese Anzeige basierend auf Ihrer Navigation auf unserer Website und den Suchkriterien, die du verwendet hast.
Lage
Die Stadt Prenzlau ist die Kreisstadt der wunderschönen Uckermark und liegt verkehrsgünstig etwa 100 km nördlich von Berlin und 50 km westlich von Stettin.
Kultur- und Naturliebhaber schätzen die Attraktivität der Stadt, die sich in den letzten Jahren zu einem beliebten Urlaubsziel entwickelt hat. Prenzlau punktet mit...
Die Wohnung
Wohnungslage
3. Geschoss
Bezug
sofort
Wohnanlage
Energie & Heizung
Warum sehe ich diese Anzeige? – Du siehst diese Anzeige basierend auf Ihrer Navigation auf unserer Website und den Suchkriterien, die du verwendet hast.
Energieausweistyp
Verbrauchsausweis
Gebäudetyp
Wohngebäude
Effizienzklasse
C
Endenergieverbrauch
77,50 kWh/(m²·a)
Weitere Energiedaten
Energieträger
Fernwärme
Details
Objektbeschreibung
In diesem Objekt verfügt jede Wohnung über einen Balkon, ein Tageslichtbad mit Badewanne oder Dusche sowie eine Küche mit Fenster.
Hier empfangen Sie digitales Fernsehen und High-Speed-Internet mit garantierten 100 Mbit/s steht ebenfalls zur Verfügung. Teilweise können auch höhere Geschwindigkeiten angeboten werden -...
Ausstattung
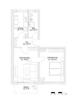
Hier haben Sie die Möglichkeit eine 2 Zimmer Wohnung im 3. Obergeschoss anzumieten. Sie verfügt über eine Küche mit Fenster, ein Tageslichtbad mit Badewanne, sowie einen großzügigen Balkon.
Abstellmöglichkeiten befinden sich im zugeordneten Keller zur Wohnung.
Preisinformation
Nettokaltmiete: 400,00 EUR
Weitere Informationen
Stichworte
Anzahl Balkone: 1
Anbieter der Immobilie

Online-ID: 2njba5z
Referenznummer: 1/261/2/16
Finde Angebote wie dieses
Hier geht es zu unserem Impressum, den Allgemeinen Geschäftsbedingungen, den Hinweisen zum Datenschutz und nutzungsbasierter Online-Werbung.