

Felder. Der Gewerbespezialist GmbH
Herr Thomas Wüstefeld
+49 ···
Nr. anzeigenPreise & Kosten
Provision für Käufer
2,38 % aus der Kaufpreissumme inkl. MwSt.
Lage
Lageübersicht
Die Gewerbeimmobilie liegt im Landkreis Traunstein (Oberbayern), einer wirtschaftsstarken Region zwischen München und Salzburg. Der Standort bietet hohe Kaufkraft, qualifizierte Arbeitskräfte und eine stabile Wirtschaftsstruktur. Die Verkehrsanbindung ist exzellent durch die A8, Bundesstraßen...
Die Industriefläche
Kategorie
Lagerhalle
Details
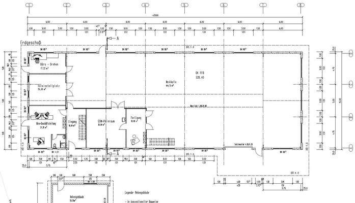
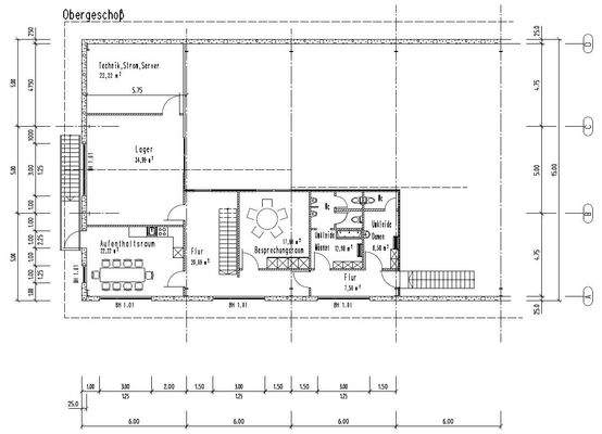
Objektbeschreibung
Hochmoderner Gewerbeneubau (2022/2023) mit lichtdurchfluteter Halle, energieeffizienter Wasser/Wasser-Wärmepumpe (Heizen & Kühlen) und Betonkernaktivierung. Top ausgestattete Produktions-/Werkhalle mit Oberlichtern, Sektionaltor, zahlreichen Druckluft- und Wasseranschlüssen sowie intelligenter LED-Lichtsteuerung...
Weitere Informationen
Nutzung
Die angebotene Immobilie ist für industrielle Fertigungsprozesse oder als Servicestandort für technische Produkte sehr gut geeignet.
Das Planungsgebiet ist als Gewerbegebiet gemäß § 8 BauNVO festgesetzt. Die Errichtung von Wohnungen von Aufsichts- und Bereitschaftspersonen sowie von Betriebsinhabern und...
Anbieter der Immobilie

Online-ID: 2njaz5u
Referenznummer: A1515
Finde Angebote wie dieses
Hier geht es zu unserem Impressum, den Allgemeinen Geschäftsbedingungen, den Hinweisen zum Datenschutz und nutzungsbasierter Online-Werbung.