
Properstar SA
Firma RE/MAX Prestige
+35 ···
Nr. anzeigenPreise & Kosten
Provision für Käufer
Bitte beachte, das Angebot kann bei Vertragsabschluss die Zahlung einer Provision beinhalten. Weitere Informationen erhältst Du vom Anbieter.
Das Haus
Kategorie
Villa
Details
Objektbeschreibung
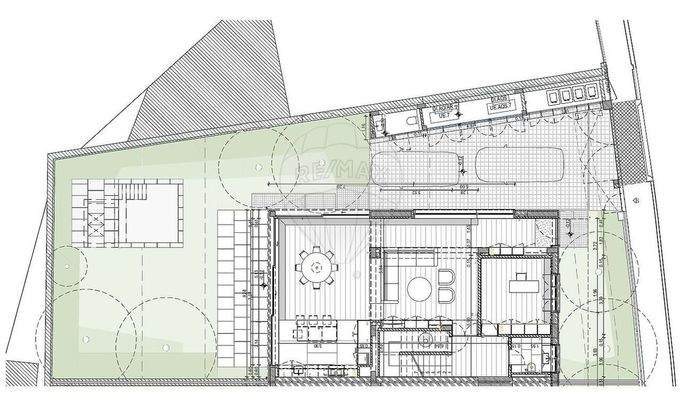
5 Bedroom Villa / New Construction / 4 Suites / Garden / Swimming Pool / Parking / Alvalade Neighborhood
5 bedroom villa under construction, with garden and swimming pool, located in the quiet area of Alvalade.
With large glazed windows in the social spaces, the interior and exterior merge in a unique and exclusive...
Weitere Informationen
Stichworte
Anzahl der Schlafzimmer: 5, Anzahl der Badezimmer: 6
Anbieter der Immobilie
Online-ID: 2njad5t
Referenznummer: 112513432
Finde Angebote wie dieses
Hier geht es zu unserem Impressum, den Allgemeinen Geschäftsbedingungen, den Hinweisen zum Datenschutz und nutzungsbasierter Online-Werbung.