

KS Immobilien GmbH - ImmobilienCenter der Kasseler Sparkasse
Herr Noah Rinder
+49 ···
Nr. anzeigenPreise & Kosten
Provision für Käufer
3,57 % inkl. MwSt.
Lage
Gesuchte Lage in Kassel-Wolfsanger - in einer ruhigen Anliegerstraße gelegen. Die Anbindung an öffentliche Verkehrsmittel ist sehr gut und befindet sich in unmittelbarer Nähe. Im Subzentrum sehr gute Einkaufsmöglichkeiten sowie Sport- und Freizeiteinrichtungen. Herrliche Spazierwege entlang der Fulda oder im Bossental haben...
Die Wohnung
Wohnungslage
1. Geschoss
Bezug
nach Vereinbarung
Wohnanlage
Energie & Heizung
Warum sehe ich diese Anzeige? – Du siehst diese Anzeige basierend auf Ihrer Navigation auf unserer Website und den Suchkriterien, die du verwendet hast.
Energieausweistyp
Verbrauchsausweis
Gebäudetyp
Wohngebäude
Baujahr laut Energieausweis
1976
Wesentliche Energieträger
Erdgas leicht
Gültigkeit
13.06.2018 bis 12.06.2028
Effizienzklasse
G
Endenergieverbrauch
215,20 kWh/(m²·a)
Details
Objektbeschreibung
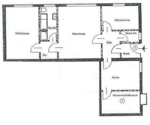
Diese gepflegte 3-Zimmer-Eigentumswohnung im 1. Obergeschoss mit ca. 82 m² Wohnfläche überzeugt durch ihre helle Atmosphäre, eine durchdachte Raumaufteilung und die ruhige Lage mit Blick zur Fulda.
Das Gebäude wurde ca. 1976 errichtet und befindet sich in einem gewachsenen Wohnumfeld, das angenehme Wohnqualität und...
Weitere Informationen
Stichworte
Anzahl der Badezimmer: 1, Anzahl der separaten WCs: 1, Anzahl Terrassen: 1, Bundesland: Hessen
Online-ID: 2nj9r5s
Referenznummer: IC-1039
Finde Angebote wie dieses
Hier geht es zu unserem Impressum, den Allgemeinen Geschäftsbedingungen, den Hinweisen zum Datenschutz und nutzungsbasierter Online-Werbung.