
FALC Immobilien Stadtlohn (Nico Jakob)
Herr Nico Jakob
+49 ···
Nr. anzeigenPreise & Kosten
Provision für Käufer
provisionsfrei
Lage
Das Objekt befindet sich in der Letter Straße 8b in 48653 Coesfeld, einer mittelgroßen Stadt im westlichen Münsterland. Die Lage zeichnet sich durch eine gute Anbindung an das Stadtzentrum aus, das in wenigen Minuten erreichbar ist. Einkaufsmöglichkeiten, Dienstleister, Restaurants und öffentliche Einrichtungen befinden sich...
Das Renditeobjekt
Kategorie
Wohn- und Geschäftshaus
Baujahr
1961
Frei ab
vermietet
Energie & Heizung
Warum sehe ich diese Anzeige? – Du siehst diese Anzeige basierend auf Ihrer Navigation auf unserer Website und den Suchkriterien, die du verwendet hast.
Wärme
Energieausweistyp
Verbrauchsausweis
Gebäudetyp
Nicht-Wohngebäude
Wesentliche Energieträger
Erdgas leicht
Gültigkeit
03.02.2026 bis 03.02.2036
Endenergieverbrauch (Wärme)
124,90 kWh/(m²·a)
Details
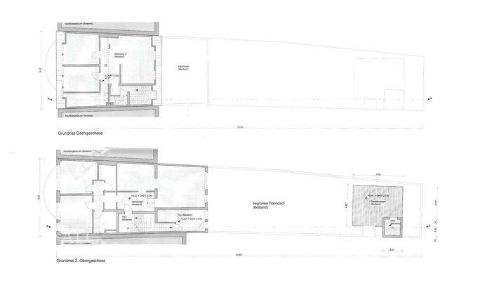
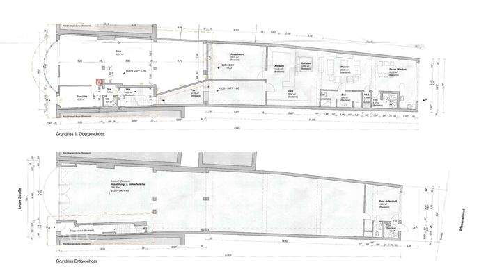
Objektbeschreibung
Bei dem angebotenen Objekt handelt es sich um ein gepflegtes Wohn- und Geschäftshaus in zentraler Lage von Coesfeld - Für den Einzelhandel eine klare 1A - Lage. Das Gebäudeensemble besteht aus einem Vorderhaus aus dem Baujahr 1961 sowie einem später errichteten Anbau aus dem Jahr 1981 und präsentiert sich heute in einem...
Ausstattung
Wohn- und Geschäftshaus in Coesfeld
Grundstück: 362 qm
Baujahr Vorderhaus: 1961
Baujahr Anbau: 1981
Fassade neugestaltet: 2001
Flachdach Anbau erneuert und begrünt: 2006
Neue Gasheizung: September 2016
Erneuerung Wasserleitungen Vorderhaus: November 2016
Umbau 2. OG...
Preisinformation
3 Stellplätze
Nettorendite Ist in %: 5,93
Ist-Mieteinnahmen pro Jahr: 94.920,00 EUR
Weitere Informationen
Sonstiges
Wir bieten nicht nur eine kostenlose Hotline, sondern auch einen Service am Wochenende. Bei Interesse geben Sie bitte immer Ihre vollständigen Kontaktdaten an.
Die Objektbeschreibung beruht ganz oder zum Teil auf Angaben des Eigentümers. Für die Richtigkeit oder Vollständigkeit übernehmen wir keine Gewähr...
Anbieter der Immobilie
FALC Immobilien Stadtlohn (Nico Jakob)
Am Sonnenhang 24, 48653 Coesfeld

Online-ID: 2nj675e
Referenznummer: FALC-NJa-79957
Finde Angebote wie dieses
Hier geht es zu unserem Impressum, den Allgemeinen Geschäftsbedingungen, den Hinweisen zum Datenschutz und nutzungsbasierter Online-Werbung.