

KAVEH Immobilien GmbH & Co. KG
Herr Kasra Kaveh
044 ···
Nr. anzeigenPreise & Kosten
Provision für Käufer
provisionsfrei
Lage
Diese Maisonettewohnung befindet sich in begehrter Innenstadtlage von Oldenburg - zentral gelegen und dennoch angenehm ruhig. Die direkte Umgebung zeichnet sich durch eine gewachsene städtische Struktur mit einer guten Mischung aus Wohn- und Geschäftshäusern aus. Nur wenige Gehminuten trennen Sie von der Fußgängerzone mit...
Die Wohnung
Kategorie
Maisonette
Wohnungslage
3. Geschoss
Bezug
Nach Absprache
Derzeitige Nutzung
vermietet
Wohnanlage
Energie & Heizung
Warum sehe ich diese Anzeige? – Du siehst diese Anzeige basierend auf Ihrer Navigation auf unserer Website und den Suchkriterien, die du verwendet hast.
Energieausweistyp
Bedarfsausweis
Gebäudetyp
Wohngebäude
Baujahr laut Energieausweis
2010
Wesentliche Energieträger
GAS
Gültigkeit
bis 03.12.2028
Effizienzklasse
G
Endenergiebedarf
225,60 kWh/(m²·a)
Weitere Energiedaten
Energieträger
Gas
Heizungsart
Zentralheizung
Details
Objektbeschreibung
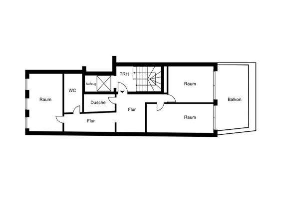
Diese ca. 161 m² große Maisonettewohnung im 3. und 4. Obergeschoss eines gepflegten Wohn- und Geschäftshauses vereint urbanes Wohnen mit viel Raum und Licht. Die Lage in direkter Innenstadtnähe, die durchdachte Raumaufteilung und die wertige Ausstattung machen diese Immobilie zu einer attraktiven Kapitalanlage - mit Potenzial...
Ausstattung
Das Hausgeld umfasst die umlagefähigen Nebenkosten (z.?B. Heizung, Wasser, Allgemeinstrom, Müllabfuhr), die nicht umlagefähigen Kosten (z.?B. Verwalterhonorar, Bankgebühren) sowie die Zuführung zur Instandhaltungsrücklage.
Preisinformation
Ist-Mieteinnahmen pro Jahr: 12.815,52 EUR
Weitere Informationen
Sonstiges
Bitte haben Sie Verständnis, dass wir nur Anfragen mit vollständig angegebenem Namen, Adresse und Telefonnummer bearbeiten können.
Sämtliche Fotos, Texte und grafische Darstellungen (Grundrisse) sind Eigentum von der Firma KAVEH Immobilien und dürfen nicht von Dritten verwendet oder weitergegeben...
Anbieter der Immobilie
KAVEH Immobilien GmbH & Co. KG
Donnerschweer Straße 79, 26123 Oldenburg

Online-ID: 2nj5z5k
Referenznummer: 69 441
Finde Angebote wie dieses
Hier geht es zu unserem Impressum, den Allgemeinen Geschäftsbedingungen, den Hinweisen zum Datenschutz und nutzungsbasierter Online-Werbung.