

Wohnungsbaugesellschaft mbH Coswig (Anhalt)
Frau Henrike Düben
034 ···
Nr. anzeigenPreise & Kosten
Kaution
2160
Warum sehe ich diese Anzeige? – Du siehst diese Anzeige basierend auf Ihrer Navigation auf unserer Website und den Suchkriterien, die du verwendet hast.
Lage
Die Wohnung liegt in der Dorfstraße 7f in Mühlstedt, einem Stadtteil von Dessau-Roßlau, der für seine ruhige, aber dennoch gut angebundene Lage bekannt ist.
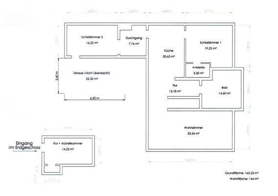
Die Wohnung
Wohnungslage
1. Geschoss (Dachgeschoss)
Bezug
sofort
Derzeitige Nutzung
frei
Wohnanlage
Energie & Heizung
Warum sehe ich diese Anzeige? – Du siehst diese Anzeige basierend auf Ihrer Navigation auf unserer Website und den Suchkriterien, die du verwendet hast.
Energieausweis: für diesen Gebäudetyp nicht notwendig
Weitere Energiedaten
Energieträger
Gas
Heizungsart
Zentralheizung
Details
Objektbeschreibung
Diese frisch renovierte Wohnung befindet sich in der ersten Etage eines Gebäudes mit nur zwei Wohneinheiten. Der großzügige Innenhof bietet einen idealen Rückzugsort, um entspannte Stunden im Freien zu genießen und die frische Luft zu atmen. Zusätzlich sorgt ein Stellplatz unter dem Carport für mehr Komfort in Ihrem...
Ausstattung
Die ansprechende, moderne Wohnung überzeugt durch ihre Gestaltung und schafft so ein komfortables Wohnumfeld.
Die eingebaute Küchenzeile bietet die perfekte Grundlage für kulinarische Experimente. Der großzügige Balkon bietet einen traumhaften Ausblick auf den Garten und die umliegenden Felder, er lädt außerdem zum...
Anbieter der Immobilie
Wohnungsbaugesellschaft mbH Coswig (Anhalt)
Zerbster Straße 94, 06869 Coswig (Anhalt)

Online-ID: 2nj575y
Finde Angebote wie dieses
Hier geht es zu unserem Impressum, den Allgemeinen Geschäftsbedingungen, den Hinweisen zum Datenschutz und nutzungsbasierter Online-Werbung.