
Stonehard Premier
Frau Adriana Nikolova
+49 ···
Nr. anzeigenPreise & Kosten
Provision für Käufer
Bitte beachte, das Angebot kann bei Vertragsabschluss die Zahlung einer Provision beinhalten. Weitere Informationen erhältst Du vom Anbieter.
Die Wohnung
Kategorie
Apartment
Details
Weitere Informationen
Sonstiges
Der Text wurde ins Deutsche mithilfe einer automatischen Software übersetzt und es ist möglich, dass er einige Ungenauigkeiten enthält. Für eine korrekte Beschreibung und aktuelle Informationen zur Immobilie wenden Sie sich bitte an unseren Makler!
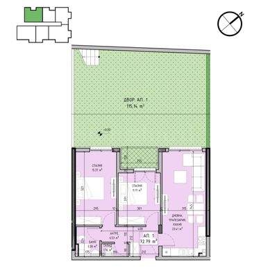
Wir bieten eine Zweizimmerwohnung mit einer Fläche von...
Anbieter der Immobilie
Stonehard Premier
51 G Cherni Vrah Blvd., 1407 SOFIA
Online-ID: 2nj3x5g
Referenznummer: IMW-137849
Finde Angebote wie dieses
Hier geht es zu unserem Impressum, den Allgemeinen Geschäftsbedingungen, den Hinweisen zum Datenschutz und nutzungsbasierter Online-Werbung.