

Felder. Der Gewerbespezialist GmbH
Frau Kerstin Wüstefeld
+49 ···
Nr. anzeigenPreise & Kosten
Provision für Mieter
1,78 Netto-Monatsmieten inkl. MwSt.
Warum sehe ich diese Anzeige? – Du siehst diese Anzeige basierend auf Ihrer Navigation auf unserer Website und den Suchkriterien, die du verwendet hast.
Lage
Im Bayerischen Voralpengebiet in der Nähe des Chiemsees, vor den Toren Rosenheims, erstreckt sich das Gemeindegebiet Stephanskirchens. Der Ort hat ca. 10.000 Einwohner und zählt zu den größeren Gemeinden im Landkreis Rosenheim. Stephanskirchen liegt auf der stark besiedelten Hochebene zwischen dem Inn im Westen und dem...
Büro-/Praxisfläche
Kategorie
Bürofläche
Bezug
sofort oder nach Vereinbarung
Details
Objektbeschreibung
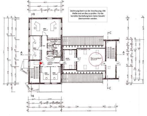
Die ca. 170 m² große Bürofläche befindet sich im 1.OG einer sehr gut sichtbar gelegenen Gewerbeimmobilie an der Staatsstraße 304, kurz hinter dem Ortsausgang Stephanskirchen / Waldering Richtung Bad Endorf. Das Büro verfügt über 6 Büros zuzüglich WC`s und kleiner Teeküche.
- sehr gut sichtbar an der Staatsstraße 304 -...
Weitere Informationen
Nutzung
Büro
Zusatz/Über Uns
Herzlich Willkommen bei Felder, Ihrem Spezialisten für Gewerbeimmobilien in Rosenheim, Traunstein, dem Chiemgau und Oberbayern.
Sie möchten mehr Informationen zu diesem Objekt? Gern übersenden wir Ihnen unverbindlich unser aussagekräftiges Exposee. Ein E-Mail oder Anruf genügt...
Anbieter der Immobilie

Online-ID: 2nj3q5y
Referenznummer: A1523
Finde Angebote wie dieses
Hier geht es zu unserem Impressum, den Allgemeinen Geschäftsbedingungen, den Hinweisen zum Datenschutz und nutzungsbasierter Online-Werbung.