

EHL Gewerbeimmobilien GmbH
Frau Miriam Ratzberger
+43 ···
Nr. anzeigenPreise & Kosten
Kaution
3-6 BMM
Provision für Mieter
3 Bruttomonatsmieten zzgl. 20% USt.
Warum sehe ich diese Anzeige? – Du siehst diese Anzeige basierend auf Ihrer Navigation auf unserer Website und den Suchkriterien, die du verwendet hast.
Lage
Durch die Nähe zum Wiener Hauptbahnhof, die S-Bahn Haltestellen St. Marx und Quartier Belvedere, diverse U-Bahn- und Straßenbahnlinien (U1, U3, 18, 71, 0), einem Autobahnanschluss an die A23 bzw. A4 und mehreren Busverbindungen ist das VILLAGE WORKS sehr gut an das öffentliche Verkehrsnetz angebunden.
Der Hauptbahnhof...
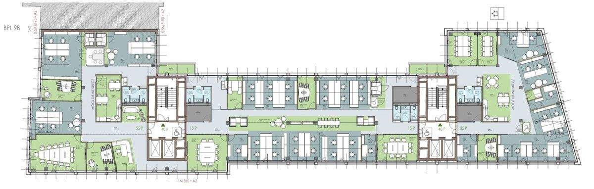
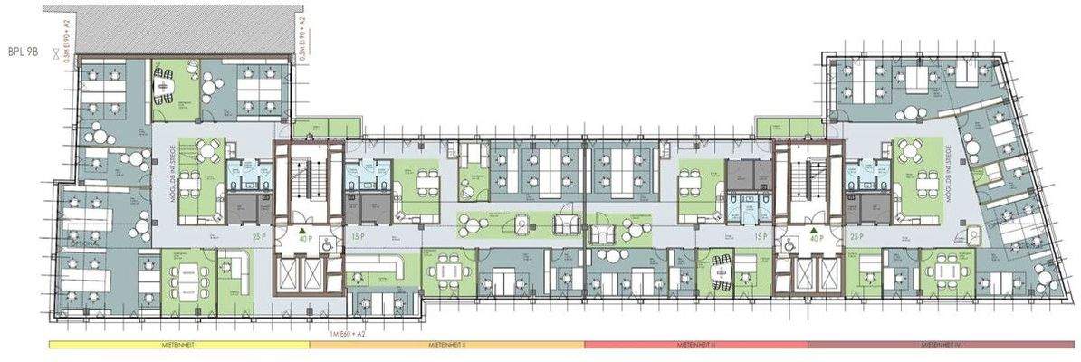
Büro-/Praxisfläche
Kategorie
Bürofläche
Geschoss
1. Geschoss
Energie & Heizung
Warum sehe ich diese Anzeige? – Du siehst diese Anzeige basierend auf Ihrer Navigation auf unserer Website und den Suchkriterien, die du verwendet hast.
Heizwärmebedarf (HWB)
28,70 kWh/(m²·a)
Gesamtenergieeffizienz (fGEE)
0,64
Details
Objektbeschreibung
Die Quartiersentwicklung VILLAGE IM DRITTEN umfasst nicht nur verschiedenste Wohnmodelle, Grünflächen und Geschäftsflächen, sondern beinhaltet außerdem dieses besondere Bürohaus. Modernes und innovatives Arbeiten wird hier groß geschrieben.
Retail, Gastronomie und Büros sorgen für eine vielfältige Durchmischung und...
Ausstattung
- Erdgeschoss - 8. Obergeschoss - pro Stockwerk ca. 880,00 m² Nutzfläche
- klimafreundliche Energieversorgung (Erdwärme, Fernwärme, Photovoltaik)
- Heiz- und Kühldecke
- Intelligente Haustechnik
- Vorzertifikat: DGNB Platin
- Regelung der Temperatur, Lüftung, Sonnenschutz und Beleuchtung über ein raumweises...
Preisinformation
33 Garagenstellplätze, Miete je: 150,00 EUR
Weitere Informationen
Sonstiges
Wir weisen darauf hin, dass zwischen dem Vermittler und dem Auftraggeber ein wirtschaftliches Naheverhältnis besteht. Der Vermittler ist als Doppelmakler tätig.
Stichworte
Garage vorhanden, Nutzfläche: 204,60 m², Bundesland: Wien
Anbieter der Immobilie
EHL Gewerbeimmobilien GmbH
Prinz-Eugen-Strasse 8-10, 1040 WIEN

Online-ID: 2nhxc5v
Referenznummer: 2300449_11
Finde Angebote wie dieses
Hier geht es zu unserem Impressum, den Allgemeinen Geschäftsbedingungen, den Hinweisen zum Datenschutz und nutzungsbasierter Online-Werbung.