

HANNOVER HAUS GmbH
Team Verkauf und Bauberatung HANNOVER HAUS GmbH
051 ···
Nr. anzeigenPreise & Kosten
Provision für Käufer
provisionsfrei
Lage
Willkommen in Horst, einem schönen, familiengeprägten Ortsteil im ,Westen von Garbsen.
Horst, etwa 15 Kilometer nordwestlich von Hannover, bietet eine ruhige und naturnahe Wohnlage, geprägt von, Einfamilienhäusern und landwirtschaftlichen Flächen. Vor Ort befinden sich eine Grundschule sowie Einkaufsmöglichkeiten für...
Das Haus
Kategorie
Reihenhaus
Energie & Heizung
Warum sehe ich diese Anzeige? – Du siehst diese Anzeige basierend auf Ihrer Navigation auf unserer Website und den Suchkriterien, die du verwendet hast.
Energieausweis: für diesen Gebäudetyp nicht notwendig
Weitere Energiedaten
Heizungsart
Fußbodenheizung, Luft-/Wasser-Wärmepumpe
Details
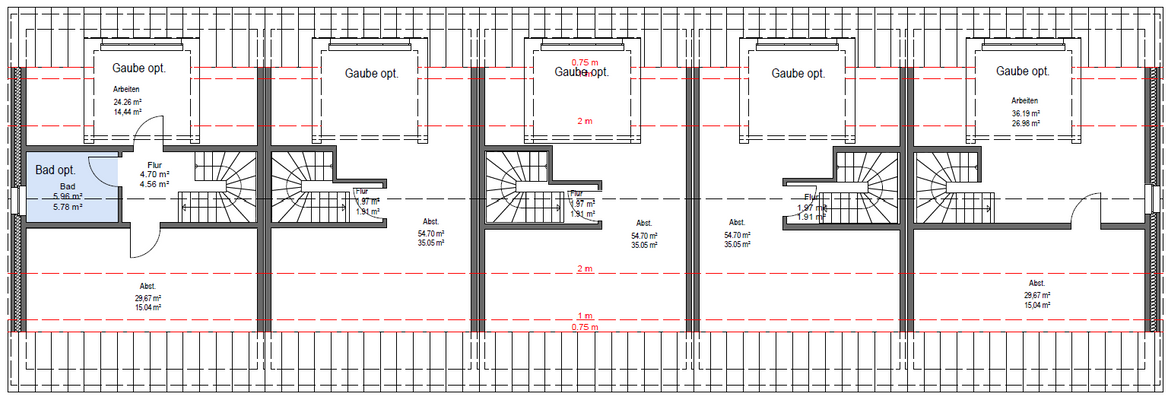
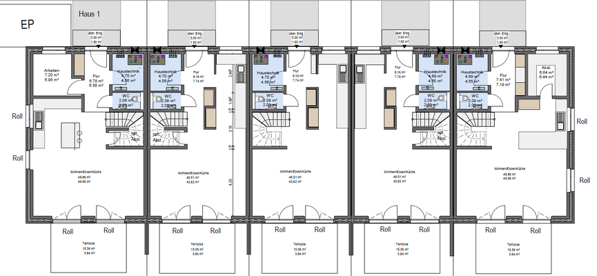
Objektbeschreibung
Herzlich Willkommen in unserem neuen Projekt "5 Premiumhäuser Im Stühe".
Hier entstehen im schönen Garbsen Ortsteil Horst im Neubaugebiet “Im Stühe” 5 Premiumhäuser mit viel Platz für die ganze Familie, die modernes Design mit höchstem Wohnkomfort verbinden.
Inmitten einer charmanten Umgebung bieten diese...
Ausstattung
Das Projekt “Premiumhäuser Im Stühe” besteht aus 5 Häusern mit je ca. 152 bzw. 176 m² Wohnfläche und einer jeweiligen Grundstücksfläche von ca. 207 bis 377 m² zzgl. Gemeinschaftsflächen von anteilig je 60,4 m².
Die Architektur der Doppelhäuser besticht durch Ihre Moderne und Offenheit und ist durch den Grundriss für...
Weitere Informationen
ÜBER UNS
HANNOVER HAUS steht für mehr als 25-jährige Erfahrung im Hausbau und fast 1.000 erfolgreich umgesetzte Bauvorhaben mit zufriedenen Kunden. Nicht umsonst wurde HANNOVER HAUS zu den innovativsten Top 100 Mittelstandsunternehmen gewählt und hat den niedersächsischen Landespreis „das Zukunftshaus“ gewonnen...
Anbieter der Immobilie
HANNOVER HAUS GmbH
Hannoversche Str. 88, 30916 Isernhagen

Online-ID: 2nhv75y
Finde Angebote wie dieses
Hier geht es zu unserem Impressum, den Allgemeinen Geschäftsbedingungen, den Hinweisen zum Datenschutz und nutzungsbasierter Online-Werbung.