
Crozilla.com
All service
+38 ···
Nr. anzeigenPreise & Kosten
Provision für Käufer
Bitte beachte, das Angebot kann bei Vertragsabschluss die Zahlung einer Provision beinhalten. Weitere Informationen erhältst Du vom Anbieter.
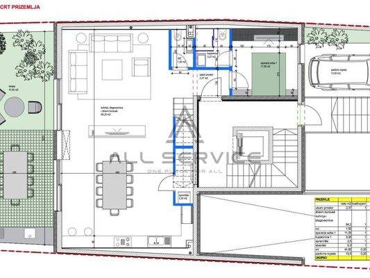
Die Wohnung
Wohnungslage
1. Geschoss
Wohnanlage
Details
Objektbeschreibung
ID CODE: 677
Ivan Grbavac
Agent s licencom
Mob: +385 97 629 0934
Tel: +385 14002709
E-mail: ivangrbavac@allservice.hr
www.allservice.hr
Weitere Informationen
Stichworte
Anzahl der Schlafzimmer: 5, Anzahl der Badezimmer: 4, 1 Etagen
Anbieter der Immobilie
Crozilla.com
Nova cesta 60, 10000 ZAGREB
Online-ID: 2nhtn5a
Referenznummer: 19232893_0
Finde Angebote wie dieses
Hier geht es zu unserem Impressum, den Allgemeinen Geschäftsbedingungen, den Hinweisen zum Datenschutz und nutzungsbasierter Online-Werbung.