

PRO-Immobilien e.K.
Herr Christian Proschinsky
062 ···
Nr. anzeigenPreise & Kosten
Provision für Käufer
paritätische Provisionsteilung 3,57% inkl. MwSt.
Lage
Weinheim, Stadtteil Oberflockenbach
Verkehrsnah!
nur 5 Minuten bis zur B3 mit OEG Anbindung,
10 min. bis nach Weinheim sowie zur
A5 Karlsruhe/Frankfurt.
Beste Infrastruktur:
Großer NahKauf
Kindergarten und Grundschule (mit Ganztagsbetreuung)
Hausarztpraxis
Freie...
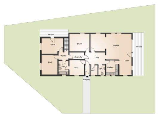
Das Haus
Kategorie
Bungalow
Geschosse
1 Geschoss
Baujahr
1964
Bezug
Frei
Derzeitige Nutzung
frei
Energie & Heizung
Warum sehe ich diese Anzeige? – Du siehst diese Anzeige basierend auf Ihrer Navigation auf unserer Website und den Suchkriterien, die du verwendet hast.
Energieausweistyp
Verbrauchsausweis
Gebäudetyp
Wohngebäude
Baujahr laut Energieausweis
1964
Wesentliche Energieträger
Strom
Gültigkeit
27.07.2025 bis 26.07.2035
Endenergieverbrauch
161,70 kWh/(m²·a)
Weitere Energiedaten
Haustyp
Fertighaus
Energieträger
Elektro, Holz
Heizungsart
Etagenheizung, Ofen
Details
Objektbeschreibung
In einer der besten Aussichtslagen vor Ort, trohnt dieser zeitlose Bungalow auf einem über 1.400qm großen Gartengrundstück!
Aus beinahe jedem Fenster haben Sie einen unverbaubaren Fernblick über Wiesen und Wälder.
2 große Gartenterrassen (Süd + West) mit Markise erweitern den Wohnraum ins freie!
So wohnen Sie stets...
Ausstattung
Der Fertighaus-Bungalow wurde 1973 teilmassiv um einen Anbau mit zwei weiteren Zimmern und einem Bad, wie auch um einen Keller und einer Doppelgarage erweitert. Es gibt eine weitere Einzelgarage.
Das Erdgeschoss wurde über die Jahre fortwährend modernisiert:
1997 Gäste- bzw. Kinderbad hinten
1999...
Weitere Informationen
Sonstiges
GELDWÄSCHE:
Als Immobilien-Maklerunternehmen ist PRO-Immobilien e.K. nach § 2 Abs.
1 Nr. 14 und § 10 Abs. 3 Geldwäschegesetz (GwG) dazu verpflichtet, vor
Begründung einer Geschäftsbeziehung die Identität des Vertragspartners
festzustellen und zu überprüfen.
Hierzu ist es erforderlich, dass nach §...
Anbieter der Immobilie

Online-ID: 2nhsy5u
Finde Angebote wie dieses
Hier geht es zu unserem Impressum, den Allgemeinen Geschäftsbedingungen, den Hinweisen zum Datenschutz und nutzungsbasierter Online-Werbung.