
iad Deutschland GmbH
Frau Julia Franz
004 ···
Nr. anzeigenPreise & Kosten
Provision für Käufer
2,9% inkl MwSt
Lage
Die Lage in Berlin-Mariendorf ist eine super Kombination aus ruhigem Wohnen und guter Anbindung an öffentliche Verkehrsmittel. Die U-Bahn-Station Westphalweg ist nur 350m entfernt, hier sind ebenfalls mehreren Buslinien, die auch zum Flughafen BER und dem Hauptbahnhof fahren. Du erreichst zentrale Punkte Berlins, wie...
Das Haus
Baujahr
1926
Bezug
sofort
Energie & Heizung
Warum sehe ich diese Anzeige? – Du siehst diese Anzeige basierend auf Ihrer Navigation auf unserer Website und den Suchkriterien, die du verwendet hast.
Energieausweistyp
Verbrauchsausweis
Gebäudetyp
Wohngebäude
Baujahr laut Energieausweis
1926
Wesentliche Energieträger
GAS
Gültigkeit
bis 23.03.2035
Effizienzklasse
C
Endenergieverbrauch
83,58 kWh/(m²·a)
Weitere Energiedaten
Energieträger
Gas
Details
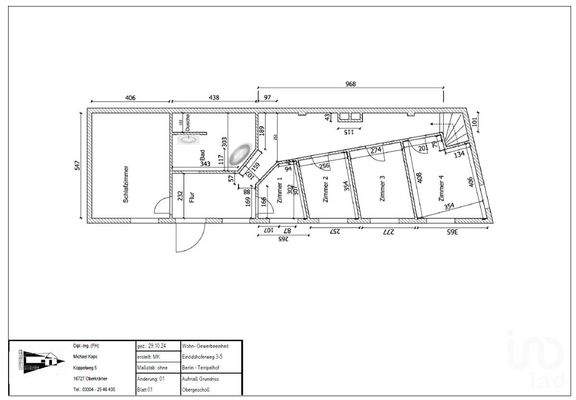
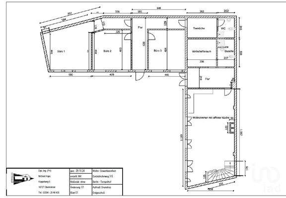
Objektbeschreibung
Es handelt sich rechtlich um eine Wohn- und Geschäftseinheit im Sondereigentum innerhalb einer Wohnungseigentümergemeinschaft.
Zwischen Atelier und Wohnzimmer steht ein Walnussbaum, der dir beim Frühstück zusieht! Er vermittelt den Spirit von Ruhe und Lebensfreude, die man durch das ganze Haus fühlt.
Denn in...
Ausstattung
- 306m² Wohn-/Nutzfläche: Zwei einzelne Gebäudeteile
- flexible Raumaufteilung durch Leichtbauwände - sehr
leicht veränderbar
- Eichendielen
- Holzprofiltüren
- Schiefer- und Steinzeugfliesen
- Wandheizungen
- moderne Gasbrennwerttechnik, komplett neu aus 2026
- moderne Lüftungsanlagen
- dreifach...
Preisinformation
1 Stellplatz
Weitere Informationen
Sonstiges
deutsch, englisch, francais possible :-)
WICHTIGE HINWEISE:
1. Eintrag im Teileigentumsgrundbuch
2. Die Immobilie ist grundbuchrechtlich als Wohnung im Sondereigentum gemäß Wohnungseigentumsgesetz (WEG) eingetragen. Das Haus bildet mit der Hausgemeinschaft eine Wohnungseigentümergemeinschaft. Der...
Anbieter der Immobilie
iad Deutschland GmbH
Schleusenstraße 15-17, 60327 Frankfurt am Main
Online-ID: 2nhsw5j
Referenznummer: iad-4352
Finde Angebote wie dieses
Hier geht es zu unserem Impressum, den Allgemeinen Geschäftsbedingungen, den Hinweisen zum Datenschutz und nutzungsbasierter Online-Werbung.