
Seiwert Vermögensverwaltung GmbH Remax Prestige
Herr Peter Lutz
004 ···
Nr. anzeigenPreise & Kosten
Provision für Käufer
3,57 inkl. MwSt. inkl. MwSt.
Lage
Das Objekt liegt ruhig in einer Straße mit reiner Wohnhausbebauung, aber mit kurzen Anbindungsmöglichkeiten, z.B. einer Bushaltestelle, am Ende der Straße. Fraulautern bietet alle Annehmlichkeiten, wenn es um die tägliche Versorgung geht und ist übergangslos an die Stadt Saarlouis angeschlossen.
Das Haus
Kategorie
Mehrfamilienhaus
Baujahr
1995
Energie & Heizung
Warum sehe ich diese Anzeige? – Du siehst diese Anzeige basierend auf Ihrer Navigation auf unserer Website und den Suchkriterien, die du verwendet hast.
Energieausweistyp
Bedarfsausweis
Gebäudetyp
Wohngebäude
Baujahr laut Energieausweis
1995
Wesentliche Energieträger
GAS
Gültigkeit
bis 01.11.2035
Effizienzklasse
C
Endenergiebedarf
91,30 kWh/(m²·a)
Weitere Energiedaten
Energieträger
Gas, Solar
Details
Objektbeschreibung
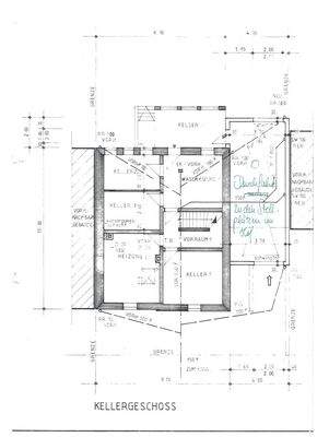
Angeboten wird hier ein vielseitig nutzbares, adrettes Haus mit 3 Eigentumswohnungen und individuell geschnittenen Grundrissen! Das gepflegte und voll unterkellerte Mehrparteienhaus bietet auf ca. 272 m² Wohnfläche plus ca. 95 m² Nutzfläche im Untergeschoss flexiblen Raum für unterschiedliche Lebenskonzepte. Die Immobilie ist...
Ausstattung
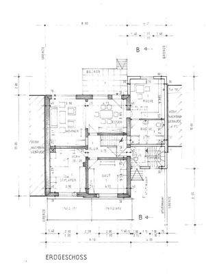
Erdgeschoss (ca. 95 m²):
Hier befindet sich eine großzügig bemessene 3-Zimmer-Wohnung mit Flur, Küche, Bad und Balkon.
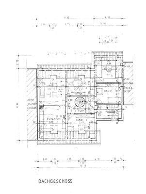
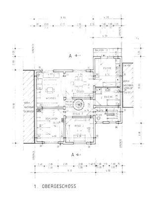
Obergeschoss (ca. 110 m²):
Diese Etage ist, im Zusammenhang mit einem Teil des Dachgeschosses, als Maisonette-Wohnung gestaltet. Das OG bietet eine Diele, 3 Zimmer, Küche, Bad und...
Preisinformation
2 Stellplätze
Weitere Informationen
Sonstiges
Bitte beachten:
Unsere Makler befinden sich häufig im Außendienst bei Kunden, sind also oft nicht telefonisch oder im Büro erreichbar. Deshalb ist es wichtig, dass Sie Ihre Anfrage zunächst schriftlich stellen und nicht vergessen, Ihre Kontaktdaten anzugeben. Der für das angefragte Objekt zuständige Makler...
Anbieter der Immobilie

Seiwert Vermögensverwaltung GmbH Remax Prestige
Johannesstr. 37, 66763 Dillingen/Saar
Online-ID: 2nhsj5m
Referenznummer: 1038-1185-351141037
Finde Angebote wie dieses
Hier geht es zu unserem Impressum, den Allgemeinen Geschäftsbedingungen, den Hinweisen zum Datenschutz und nutzungsbasierter Online-Werbung.