

Hendricks-Immobilien
Herr David Hendricks
+49 ···
Nr. anzeigenPreise & Kosten
Provision für Käufer
1,79 inkl. MwSt.
1,79 % Käufercourtage vom Kaufpreis inklusive gesetzlicher Mehrwertsteuer
Lage
Neuss ist eine sehr beliebte und aufstrebende Stadt mit vielen kulturellen Highlights (Kunst, Theater, Stadtgeschichte, usw.) sowie jeder Menge Möglichkeiten zu entspannen und abzuschalten.
Geschäfte des täglichen Bedarfs, Restaurants und Cafés, sowie Ärzte und Apotheken sind in Kürze zu erreichen.
Die...
Das Haus
Kategorie
Einfamilienhaus
Baujahr
2017
Bezug
nach Vereinbarung
Energie & Heizung
Warum sehe ich diese Anzeige? – Du siehst diese Anzeige basierend auf Ihrer Navigation auf unserer Website und den Suchkriterien, die du verwendet hast.
Energieausweistyp
Bedarfsausweis
Gebäudetyp
Wohngebäude
Wesentliche Energieträger
Strom
Gültigkeit
17.10.2024 bis 16.10.2034
Effizienzklasse
A+
Endenergiebedarf
24,10 kWh/(m²·a)
Weitere Energiedaten
Haustyp
Massivhaus
Energieträger
Elektro
Details
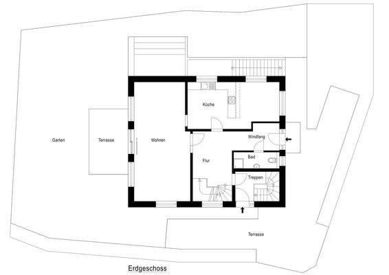
Objektbeschreibung
Hier bietet sich Ihnen die besondere Gelegenheit, ein modernes Einfamilienhaus mit Einliegerwohnung in beliebter und zentraler Wohnlage zu erwerben.
Das freistehende Einfamilienhaus befindet sich auf einer ruhigen Anliegerstraße in Neuss und bietet auf einer gesamten Wohn- und Nutzfläche von ca. 355 qm Platz für die...
Ausstattung
. Wohnfläche ca.255 qm
. Nutzfläche 100 qm
. 2 PKW-Außenstellplätze
. 7 Zimmer
. Voll unterkellert
. Einliegerwohnung mit separatem Zugang
. Tageslichtbadezimmer
. Gäste WC
. Fußbodenheizung
. Großer Garten
. Beliebte Wohnlage
Preisinformation
2 Stellplätze
Weitere Informationen
Sonstiges
Alle Angaben beruhen auf Informationen des Eigentümers. Für die Richtigkeit können wir keine Gewähr übernehmen.
Stichworte
Stellplatz vorhanden, Nutzfläche: 100,00 m², Anzahl der Schlafzimmer: 5, Anzahl der Badezimmer: 4, Anzahl Terrassen: 1, 3 Etagen, Lage im Ort
Sonstiges/Wohnen...
Anbieter der Immobilie

Online-ID: 2nhs25x
Referenznummer: 7875#Oedhd
Finde Angebote wie dieses
Hier geht es zu unserem Impressum, den Allgemeinen Geschäftsbedingungen, den Hinweisen zum Datenschutz und nutzungsbasierter Online-Werbung.