

Sparkasse Forchheim in Vertretung der Sparkassen-Immobilien-Vermittlungs-GmbH
Herr Martin Langmar
091 ···
Nr. anzeigenPreise & Kosten
Provision für Käufer
3,57 % inkl. MwSt.
Lage
Eine 1.200-jährige Geschichte prägt die liebenswerte Kleinstadt mit ca. 31.000 Einwohnern und hat sie zu dem gemacht, was sie heute ist: eine interessante Einkaufsstadt, die sich auszeichnet durch ihre Gastfreundschaft, das selbst gebraute Bier und die idyllischen Bierkeller sowie zahlreiche Veranstaltungen...
Das Haus
Kategorie
Mehrfamilienhaus
Baujahr
1950
Derzeitige Nutzung
vermietet
Energie & Heizung
Warum sehe ich diese Anzeige? – Du siehst diese Anzeige basierend auf Ihrer Navigation auf unserer Website und den Suchkriterien, die du verwendet hast.
Energieausweistyp
Bedarfsausweis
Gebäudetyp
Wohngebäude
Baujahr laut Energieausweis
1950
Wesentliche Energieträger
Öl
Gültigkeit
27.10.2017 bis 26.10.2027
Effizienzklasse
C
Endenergiebedarf
75,10 kWh/(m²·a)
Weitere Energiedaten
Haustyp
Massivhaus
Energieträger
Öl
Heizungsart
Zentralheizung
Details
Objektbeschreibung
Das 1950 erbaute und zwischen 2012 und 2017 komplett sanierte Massivhaus verfügt über drei abgeschlossene Wohnungen, die alle vermietet sind. Die derzeit durchschnittlich erzielte Kaltmiete liegt bei 11,80 €/m².
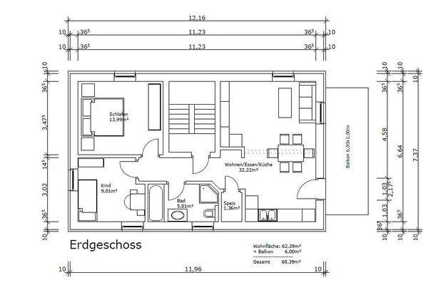
Im EG befindet sich eine 3-Zimmer-Wohnung mit Balkon und ca. 68 m² Wohnfläche. Im OG liegt eine baugleiche...
Ausstattung
- Wärmedämmverbundsystem
- Kunststofffenster mit Isolierverglasung
- Fußbodenheizung
- hochwertige Vinyl- und Fliesenböden
- elektrische Jalousien
- Balkon im EG und OG
Preisinformation
Ist-Mieteinnahmen pro Jahr: 27.054,00 EUR
Weitere Informationen
Stichworte
Stellplatz vorhanden, Gesamtfläche: 191,00 m², vermietbare Fläche: 191,00 m², Anzahl der Schlafzimmer: 5, Anzahl der Badezimmer: 3, Balkon-Terrassen-Fläche: 24,00 m², Anzahl der Wohneinheiten: 3, Bundesland: Bayern, 4 Etagen, modernisiert: 2017
Anbieter der Immobilie
Sparkasse Forchheim in Vertretung der Sparkassen-Immobilien-Vermittlungs-GmbH
Klosterstr. 14, 91301 Forchheim

Online-ID: 2nhr75w
Referenznummer: 1/20/214-214/010915
Finde Angebote wie dieses
Hier geht es zu unserem Impressum, den Allgemeinen Geschäftsbedingungen, den Hinweisen zum Datenschutz und nutzungsbasierter Online-Werbung.