
A4RES Advisory GmbH
Team A4RES Property Management GmbH Vermietung
(03 ···
Nr. anzeigenPreise & Kosten
Kaution
1.235,00
Warum sehe ich diese Anzeige? – Du siehst diese Anzeige basierend auf Ihrer Navigation auf unserer Website und den Suchkriterien, die du verwendet hast.
Lage
Das Objekt liegt direkt in der Fußgängerzone von Senftenberg, sämtliche Geschäfte des täglichen Bedarfs sowie Ärzte sind fußläufig erreichbar.
Die Wohnung
Bezug
nach Vereinbarung
Wohnanlage
Energie & Heizung
Warum sehe ich diese Anzeige? – Du siehst diese Anzeige basierend auf Ihrer Navigation auf unserer Website und den Suchkriterien, die du verwendet hast.
Weitere Energiedaten
Energieträger
Gas
Heizungsart
Zentralheizung
Details
Objektbeschreibung
Kurzbeschreibung
A4RES - Großzügige 95 m² 2-Raum-Oase mit EBK - nach Wunsch gestalten - pure Wohnfreude inklusive
Objekt
Die umgebaute und neu sanierte 2-Raumwohnung mit einer Wohnfläche von ca. 95 m² befindet sich im Erdgeschoss eines Wohn- und Geschäftshauses im Zentrum von Senftenberg.
Die Wohnung steht...
Ausstattung
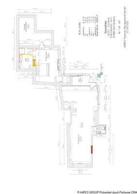
Diese attraktive Wohnung entsteht durch den hochwertigen Umbau einer ehemaligen Gewerbeeinheit und überzeugt als Wohnung mit zeitloser Eleganz. Der beigefügte Grundriss und Musterbilder illustrieren die großzügige Raumaufteilung und die geplante Ausstattung.
Der Grundriss zeigt einen hellen Flur, eine separate...
Preisinformation
Nettokaltmiete: 617,50 EUR
Weitere Informationen
Sonstiges
Heizungsart: Zentralheizung
Baujahr: 1886
Befeuerung/Energieträger: Gas
Energieausweistyp: Bedarfsausweis
Energieeffizienzklasse: C
Team Vermietung / Ihre Ansprechpartner:
Frau Bartho - Tel.: 03591 - 3266043
Mobil: 0170 - 3266281
Herr Grüber - Tel.: 03591 - 3266029
Mobil...
Anbieter der Immobilie
A4RES Advisory GmbH
Wilthener Straße 39, 02625 Bautzen

Online-ID: 2nhqk5p
Referenznummer: 8218
Finde Angebote wie dieses
Hier geht es zu unserem Impressum, den Allgemeinen Geschäftsbedingungen, den Hinweisen zum Datenschutz und nutzungsbasierter Online-Werbung.